Moderný dom na svahu vo Švajčiarsku s výhľadom na hory

K_m architektúra má moderný dom na svahu postavený v roku 2012 pre rodinu z Weinfelden vo Švajčiarsku. Ponúka úchvatný výhľad na hory, ktoré sú vďaka zaskleniu od podlahy až k stropu úplne bez prekážok..
Moderný dom vo svahu vo Weinfeldene

Dom je orientovaný na juh a ponúka nádherný výhľad na široké okolie. Rodinný dom charakterizuje plávajúca architektúra a používanie prírodných materiálov, ako je betón, sklo a drevo. Aby sa vytvoril vizuálny kontakt so zemou, zvyšok domu je postavený z dreva. Celá fasáda je obložená prírodnou bielou borovicou z tohto regiónu. Rôzne obytné časti sú rozdelené do dvoch poschodí. Horný objem visí nad vchodom a tvorí zastrešenie terasy.
Moderný dom vo svahu s drevenou fasádou

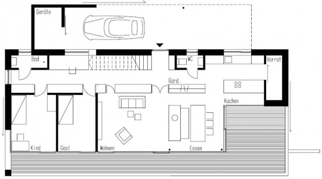
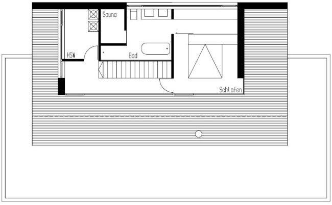
Na hornom poschodí sú súkromné spálne rodičov s veľkou strešnou terasou. Na prízemí sa nachádza priestranný otvorený obývací priestor, kde kachľová pec slúži ako rozdeľovač miestností. Krytá terasa obklopuje budovu a zasklenie od podlahy až k stropu sa bezproblémovo spája zvnútra aj zvonku. V zime sa slnko stáva pasívnym zdrojom energie. Zdá sa, že zadná časť domu je zatvorená.
Pohľad na Weinfelden

Dom bol naplánovaný podľa prísnych koncepcií trvalej udržateľnosti vrátane ekologickej kvality materiálov a solárneho systému teplej vody.
Polička na knihy v nástennom výklenku
zasklenie od podlahy po strop a prístup na balkón

Kachľová pec ako predel miestnosti

Jedáleň s lavicou

Predsieňová skriňa

úzka dlhá chodba

vnútorné / vonkajšie spojenie

krásne nočné osvetlenie




Pôdorysy a náčrty



Fotografie Sabrina Scheja
