Záhradný pavilón v Indii ako útočisko s tropickým nádychom

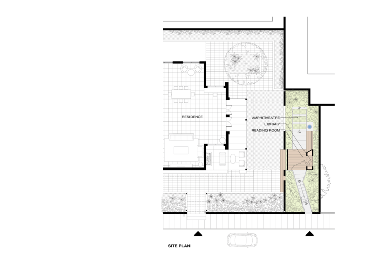
Radi by sme vám predstavili exotický dizajn krajiny. Myšlienka bola uskutočnená na rozšírení majetku v Indii, ktoré sa dovtedy nevyužívalo. Výsledkom je a Záhradný altánok vyrobené z dreva, ktoré je na jednej strane obklopené tropickými a sviežimi rastlinami, čo z neho robí perfektné útočisko. Presnejšie povedané, pavilón pozostáva z drevených pásov, ktoré sú recyklovaným drevom. Medzi pásmi v streche bola zachovaná medzera. Týmto spôsobom môže denné svetlo prúdiť do interiéru. Aby bola strecha chránená pred dažďom, bola pokrytá sklenenou tabuľou. To tiež dodáva záhradnému altánku ešte modernejší vzhľad.
Záhradný altánok z recyklovaného dreva

Na druhej strane pavilónu boli vytvorené schody, ktoré sú pokryté trávnikom a pripomínajú sedacie plochy amfiteátra. V samotnom záhradnom pavilóne je dostatok miesta na umiestnenie záhradného nábytku. V súčasnej dobe sú k dispozícii pohodlné stoličky. Ale úžasne sa sem zmestia aj pohovky a kreslá s konferenčným stolíkom. A ak má záhradný altánok slúžiť ako pódium rodinného večera, dá sa jednoducho vyčistiť.
Záhradný pavilón orámovaný tropickými rastlinami

Základová doska pre záhradný altánok bola zapustená do zeme a taktiež bola znížená úroveň chodníkov, ktoré k nej vedú. Tí druhí dostali ako rám aj stenu z čiernej žuly. Stena má zasa malé výklenky so žiarovkami, ktoré večer nádherne osvetlia záhradnú cestu. Takýmto spôsobom vznikne zvuková izolácia, ktorá má chrániť pred hlukom blízkej cesty.
Pavilón je vyrobený z drevených dosiek a pásov

Tento záhradný altánok môže byť dokonalou inšpiráciou, ak chcete navrhnúť podobné posedenie vo svojej záhrade a v súčasnosti hľadáte zaujímavé nápady. Ako vidíte, v pavilóne je dokonca malá skladovacia miestnosť s policami. Táto myšlienka môže byť užitočná aj pre vás. Pozrite sa na ďalšie zaujímavé fotografie pavilónu nižšie!
Záhradný altánok z hornej úrovne

Strecha pavilónu zo skla

Pavilón s bočným kútikom na čítanie

Záhradná cesta pred žulovým pavilónom

Stavba pavilónu

Umiestnenie záhradného altánku na pozemku

Kroky v terénnych úpravách pre záhradný altánok

Dizajn od CollectiveProject.
