Zariaďovanie funkčného a moderného bytu – praktické rady

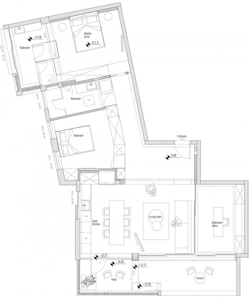
byt v Tel Avive, neďaleko krásnych pláží, prešiel rekonštrukciou a redizajnom. Budova pochádza z roku 1957 a pôvodne mala niekoľko malých miestností a výklenkov a dlhú tmavú chodbu. Dizajnéri by mali byť Zariaďte si byt a vziať do úvahy vysoké nároky rodinného klienta – zachovať individuálny charakter budovy, ale reinterpretovať ju.
Zariadenie bytu – funkčné, moderné a jednoduché

Byt je navrhnutý tak, aby optimálne zodpovedal potrebám obyvateľov a zaistil pohodlný každodenný život mladým rodinám. Za obývacou izbou alebo obývačkou bola za presklenou stenou zriadená samostatná pracovňa. Ak je to žiaduce, pomocou bielej záclony už nie je možné vidieť.
Zariaďte si byt štýlovo

Priečky boli odstránené, aby bol zaistený optimálny tok svetla celým bytom. Z vnútornej strany bolo zmenené celé rozloženie miestnosti; zvonku boli dekoratívne vzdušné panely, typické pre architektúru štvrte, iba obnovené a bola pripravená krásna malá terasa..
Zariaďte si svoj domov – praktická televízna konzola alebo televízor pripevnený k stĺpu

Obývacia časť s otvorenou kuchyňou je veľmi funkčná a praktická. Druh televíznej konzoly – otočná tyč od podlahy k stropu, ku ktorej je televízor pripevnený, umožňuje dobrý výhľad z gauča alebo kuchyne. Hravé obklady stien so španielskou keramikou prinášajú do moderne zariadenej miestnosti exotický nádych.
Zariaďte byt a samostatné priestory – pracovný priestor

Zariadenie moderného bytu – otvorená kuchyňa v bielej farbe

Atraktívna biela kuchyňa s otvoreným priestorom – kachľová stena s tradičnou španielskou keramikou

Zariaďte si svoj domov – nástenná polica na poháre a poháre

Veľký bar namiesto jedálenského stola oddeľuje obývaciu izbu od kuchynskej časti

Praktická drevená doska na krájanie zabudovaná v kuchynskej linke

Zariadenie bytu – kúpeľňa v spálni








Hravý dizajn obkladov stien a stropov z dreva






Zariaďovanie bytu – ochrana súkromia prostredníctvom šalosií a vzdušných panelov



Plánujte s rozložením miestnosti v byte

* projekt od Interiérový dizajn Dori
