Tehlová stena, drevo a svetlé farby robia z Auchenflower House v Austrálii to, čo je

Na predmestí Auchenflower, v austrálskom Brisbane, je moderný dom, ktorý jedinečným a rešpektujúcim spôsobom reinterpretuje osobitý charakter tohto miesta. Táto unikátna budova nahrádza starý dom zo 60. rokov minulého storočia. Starý koncern mal zvláštnu vlastnosť – tehlový múr na strane ulice. Pôvodná zvláštnosť stavby bola prevzatá do nového dizajnu a výrazne ovplyvnila štýl nového rodinného domu. Pri projekte Domu Auchenflower v roku 2018 zadali klienti architektov z Kelder Architects.

Klienti chceli útulný, ale vzrušujúci rodinný dom, ktorý by dokázal čo najlepšie využiť polohu a polohu. Podľa priania zákazníka by architektúra domu mala odkazovať na modernistický architektonický štýl amerických domov z polovice storočia. Klasické domy, ktoré boli v tom čase postavené v kalifornskom Palm Springs, by mali slúžiť ako inšpirácia.

Pri rekonštrukcii by mal Kelder Architects vziať do úvahy aj umiestnenie stromov, topografiu a v neposlednom rade subtropické podnebie Brisbane. Dom by mal spĺňať jednu dôležitú požiadavku – mal by byť otvorený zvonku a rovnako sa zameriavať na to, čo sa deje vo vnútri i vonku.

Dom Auchenflower sa rozprestiera na pozemku o rozlohe 582 m². Predmestie Auchenflower je známe svojimi charakteristickými, kopcovitými, zelenými ulicami. Moderný rodinný murovaný dom, ako každá iná novo postavená budova v Brisbane, mal splniť požiadavky mestskej rady. Každá nová budova by mala prevziať charakter prevládajúcich domov v oblasti pred rokom 1946. Cieľom tejto požiadavky bolo zachovať miestnu tradíciu. Zrážka zásad mestskej rady a modernistických myšlienok architektov vyústila do komplexného a zaujímavého riešenia.

Auchenflower House je výsledkom snáh o zosúladenie modernistickej estetiky storočia s prevládajúcim konceptom regiónu. V starej tehlovej stene architekti rozpoznali jedinečnú a nenahraditeľnú súčasť nového dizajnu, ktorá symbolizuje nadčasovú trvanlivosť. Tehlová stena je masívnym, vysoko kvalitným a vynikajúcim atribútom domu.

Aby sa zachoval charakteristický tehlový vzhľad, ktorý bol typickým znakom v interiéri aj exteriéri, zvolili architekti tehlu ako materiál pre niektoré vonkajšie steny. Tehly tiež označujú okraje schodov na obývaciu terasu a vytvárajú celkový harmonický obraz. Teplá farebná zmes výrazných červených tónov a sýto oranžovej z tehál dokonale dopĺňa zelenú krajinu a vystupuje proti celej bielosivej fasáde domu..

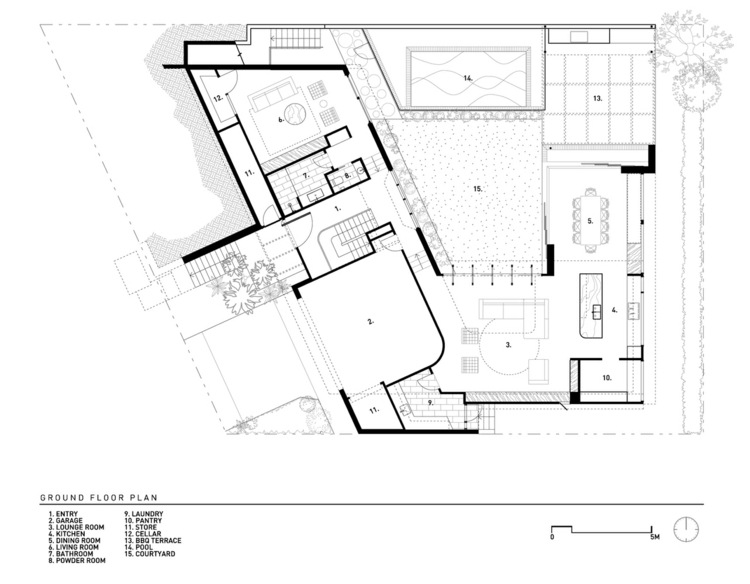
Dom Auchenflower je postavený okolo nádvoria orientovaného na sever s bazénom. Všetky obývačky na prízemí sa vinú okolo tohto centrálneho nádvoria a otvárajú sa do neho. Dvor ponúka domu mnoho výhod. Svetlo a svieži vánok prenikajú do domu po celý deň a vytvárajú skvelú atmosféru pre každodenný rodinný život a aktivity. Moderný tehlový murovaný dom má výhľad, ktorý nie je možné rozšíriť ani zablokovať.

Vďaka strmej topografii bol vytvorený dizajn domu so zaujímavými uhlami a rôznymi úrovňami. Úrovne prebiehajú z ulice do vstupnej oblasti a potom späť dolu do centra domu, t.j. do centrálneho dvora a najdôležitejších obytných priestorov. Priestranný dom s obytnou plochou 400 m² je nenápadne zarezaný do nehnuteľnosti a udržiavaný na úrovni ulice. Tento veľký dom sa pre okoloidúcich predstavuje ako malé, prístupné a krásne sídlo, ktoré dokonale zapadá do oblasti s kopcovitými ulicami Auchenflower..

Dom je štýlovo a komfortne zariadený. Farebný koncept, ktorý charakterizuje fasádu, pokračuje aj v interiéri. To tiež posilňuje dojem, že vnútorné a vonkajšie priestory sa hladko spájajú. Teplé drevo, elegantné, biele povrchy, ako aj podlahy a nábytok v modernej šedej farbe prinášajú domácu atmosféru a dodávajú celému zariadeniu moderný nádych..













* Môžete nájsť ďalšie projekty od Kelder Architects tu
