Stepping Stone House: Moderný dom na chodúľoch vo vode

Hamish architekti & Lyons nedávno dokončil Stepping Stone House – prístavbu kaštieľa v anglickom Berkshire, ktorá sa týči na oceľových stĺpoch nad jazerom. Podľa architektov by štíhla oceľová konštrukcia mala budiť dojem, že budova pláva nad vodou. Moderný dom na stĺpoch nielenže púta pozornosť, ale je chránený aj pred povodňami.

Architekti boli poverení naplánovať prestavbu 3 nevyužívaných a povodne náchylných prístavieb a vytvoriť ďalší životný priestor pre rodinu s piatimi deťmi (5 chlapcov vo veku 8 až 15 rokov). Tri z detí majú poruchu pozornosti s hyperaktivitou (ADHD) – poruchu správania, ktorá ich môže spôsobiť hyperaktivitu. Konštrukcia novej prístavby by preto mala umožniť prúdenie upokojujúceho účinku prírody do obyvateľov. To sa dosahuje hojným používaním prirodzeného svetla a prírodných materiálov.

Obmedzenia lokality predstavujú pre architektov výzvu: prírodná rezervácia, zelená zóna, lužné a chránené budovy. Pred udelením schválenia bolo potrebných päť plánovacích aplikácií počas trojročného obdobia.
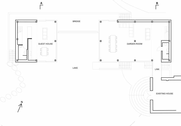
Menšia z dvoch nových budov je nezávislý penzión a má kuchyňu a obývací priestor, technickú miestnosť, kúpeľňu a plošinu, ktorá je umiestnená pod šikmou strechou..
Väčšia budova je multifunkčným priestorom a deti ju používajú predovšetkým ako herňu. S prízemím existujúceho domu je prepojený skleneným mostom.

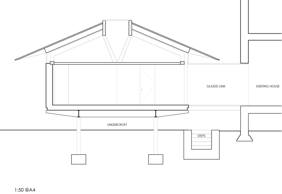
Obe budovy majú šikmé strechy s extra veľkými odkvapmi, ktoré chránia interiér pred priamym slnečným žiarením. Strechy sú podopreté stĺpmi v tvare Y vyrobenými z lepeného laminovaného dreva, vybraných pre ich presné a stabilné vlastnosti. Tiež sa perfektne hodia k panelom Douglasova jedľa použitým v celom interiéri. Špeciálny tvar nosných stĺpikov vytvára priestor pre svetlíky, ktoré predlžujú celú dĺžku oboch budov a ponúkajú pohľad na oblohu zvnútra.

Sklenené steny, ktoré obklopujú dom Stepping Stone, sú vybavené posuvným kovaním, aby sa dali úplne otvoriť. Zostávajúce plochy sú obložené tehlami, aby bola novostavba prispôsobená existujúcemu domu.
Chôdze zdvíhajú budovy nad jazero a umožňujú splachovací prístup k existujúcemu domu. Plávať sa dá aj pod budovami. Na južnej strane prístavby je dokonca potápačská plošina.

„Hamish & Lyons ‘pracoval aj na terénnych úpravách, ktoré sú neoddeliteľnou súčasťou konceptu. Hlavným cieľom bolo prepojiť rodinu s prírodou, zaradiť kúpacie jazero a vytvoriť súvislú trasu okolo budov. Chodník sa kľukatí z parkoviska cez chránenú záhradu veľkých, 2 až 3 metre vysokých starodávnych stromov a potom končí na chodníku vo vode. V noci vonkajšie osvetlenie zvýrazňuje staré stromy v záhrade, zatiaľ čo vodné prúdy vytvárajú oblúk osvetlených svetiel nad nášľapnými kameňmi. Architektúra a krajina sa spájajú do hravého a pútavého miesta, ktoré je upokojujúce i duchovné.

Architekti navrhli budovu ako modulárny systém, ktorý bol prefabrikovaný a umožňoval zvýšiť účinnosť stavby. Tiež tvrdili, že systém je možné použiť na rôzne účely a na rôznych miestach, ako napríklad: B. v jazerách, pobrežných oblastiach a záplavových oblastiach.















* Viac projektov od Hamish & Lyons nájdete na ich webových stránkach
