Rodinný dom s plochou strechou propaguje minimalistický interiér

Veľkolepý Rodinný dom s plochou strechou fascinovaný originálnou minimalistickou architektúrou. Dom Pinheiro zaujme svojou jednoduchou estetikou a úspešnou distribúciou miestnosti.
Veľkolepý rodinný dom s plochou strechou – moderná architektúra v Brazílii

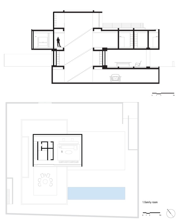
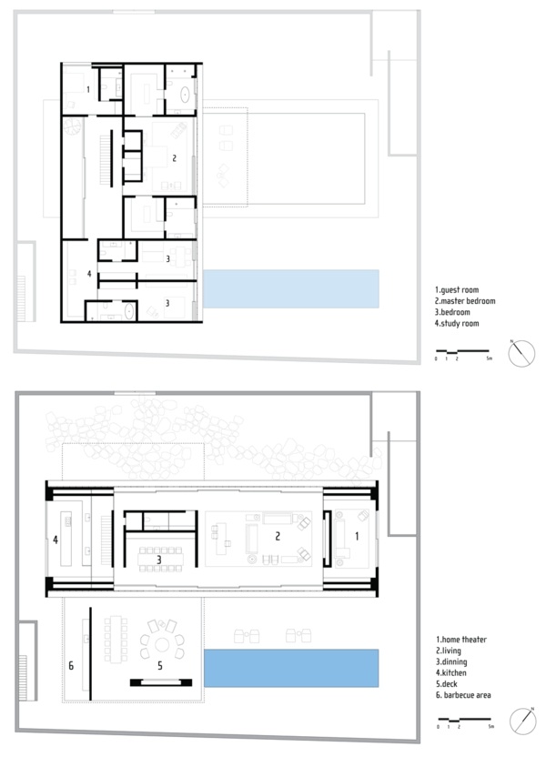
Ten moderný Rodinný dom s plochou strechou, projekt z renomovanej kancelárie architektov MK27, pozostáva z troch stavebných objemov, ktoré sú otočené okolo osi. Pôvodný koncept otvára budovu svojmu okoliu a ponúka nádherný výhľad na neďaleké mesto Sao Paulo. Obyvatelia môžu obdivovať nádhernú krajinu cez bohato zasklenú fasádu. Váš súkromný priestor sú večer chránené veľkými drevenými roletami. Veľká záhrada s bazénom a krbom ponúka príležitosť vychutnať si teplé podnebie.
Dom je trojpodlažný – na prvom poschodí je kuchyňa, práčovňa, jedáleň a obývačka. Štyri spálne a skrinka sú na druhom poschodí. Absolútnym vrcholom v interiéri sú fitnes štúdio a domáce kino.
Rodinný dom s plochou strechou – optimálne rozloženie priestoru

Za vysoko kontrastnou fasádou zo skla a betónu sa skrýva moderný a útulný interiér. Farebná schéma – spravidla minimalistická – je zachovaná neutrálna. Sivé betónové steny pôsobia puristicky a drsne. Nábytok nastavuje akcenty – drevený nábytok dodáva miestnostiam útulný vzhľad. To Rodinný dom s plochou strechou je vynikajúcim príkladom toho, že s kreativitou je možné postaviť moderné a funkčné domy aj na obmedzenom teréne. Talentovaní architekti z MK27 majú za sebou niekoľko ocenených projektov a sú známi po celom svete svojimi kreatívnymi a luxusnými minimalistickými domami.
Moderná minimalistická architektúra – fasáda domu

Betónové steny a drevené podlahy

Jedáleň v neutrálnych farbách

Moderná garáž a skriňa v jednom

minimalistická dokonalosť – aj garáž vyzerá elegantne

Efektívna farebná kombinácia do jedálne

Vonkajšia kuchyňa s krbom a posedením

Strešná terasa so sklenenými zábradliami

Bazén a ležadlá v záhrade

Dom z betónu a skla







