Rekonštruovať, prerobiť a zväčšiť dom – radový dom

Mladá rodina chcela, aby si namiesto toho hľadala nový byt Zrekonštruovať dom, prestavať a zväčšiť. Radový dom sa nachádza v regióne Melbourne v Austrálii, ktorého budovy sú chránené ako historické pamiatky vo viktoriánskom štýle. Táto zvláštnosť tvrdí, že domový sud by mal zostať taký, aký je.
Renovácia a prestavba domu – radový dom vo viktoriánskom štýle

Renovácia prebehla na zadnej strane a zahŕňa celkom 140 metrov štvorcových obytnej plochy. Dom bol rozšírený o chytrý dizajn o ďalšie dve spálne, oddelené miestnosti pre dve deti rodiny a nestratilo sa individuálne kúzlo typického architektonického štýlu. Prioritou bolo zachovať prirodzené denné svetlo a zabezpečiť ho v každej miestnosti. Napriek obmedzenému priestoru a pôvodným architektonickým obmedzeniam sa to podarilo dosiahnuť a optimalizovať.
Zrekonštruujte dom a rozšírte ho o ďalšie dve miestnosti

Interiér má jednoduchý a funkčný dizajn s jasnými líniami. Štýlová obývacia izba otvorená do kuchyne má veľké obrazové okná s terasovými dverami do zadnej záhrady. Skrinky v kuchyni a obývačke medzi nimi majú moderný dizajn – bez úchytiek pre vizuálne jednotný celkový obraz. Vďaka jednoduchému dizajnu a štruktúre nábytku pôsobia miestnosti väčšie a harmonickejšie a použitie veľkého množstva dreva vyžaruje teplo a útulnosť..
Obnovte a prerobte svoj dom a nestratte individuálny charakter budovy

Rekonštrukcia a modernizácia domu – obývacia izba so zadnou záhradou

Rekonštrukcia a modernizácia domu

Zrekonštruujte svoj dom a prerobte ho moderne – moderné otvorené kuchynské a obývačkové skrine bez úchytiek

Minimalistická a jednoduchá kuchyňa v bielej farbe

Jedálenská časť s krásnym denným svetlom cez strešné okno a okenné sklá

Zrekonštruujte dom a postavte ďalšie dve spálne

Dom je zrekonštruovaný a funkčne zrekonštruovaný

Zrekonštruovať, prerobiť a zväčšiť dom

Jednoduchá spálňa so vstavanou skriňou a skrytými zásuvkami po schodoch

Jednoduchý, minimalistický dizajn kúpeľne

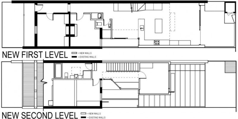
Plán ukazuje pôvodné prvé a druhé poschodie


Plánujte s pôdorysom dnešného prvého a druhého poschodia


Vizualizácia zadnej záhrady po renovácii


* projekt od Architekti Nic Owen
