Odhalený betón vo vnútri pre podlahy a stropy – dom architekta v Izraeli

Izraelská architektonická spoločnosť Pitsou Kedem navrhla dom so súčasným dizajnom pre samotného architekta. Podobne ako projekty architektov, budova má plochý, obdĺžnikový vzhľad a Vnútri pohľadový betón a našiel sa vonku. Hrubé, nespracované povrchy z dreva, ocele a prírodného kameňa kombinované s nekonečnými okennými stenami pozdĺž miestností sú len malou časťou pozoruhodného dizajnu. Výsledkom je nadčasový, súčasný architektonický objekt, ktorý v sebe skrýva všetky funkcie a vlastnosti rodinného domu.
Odhalený betón zvnútra aj zvonka pre podlahu a strop v dome architekta

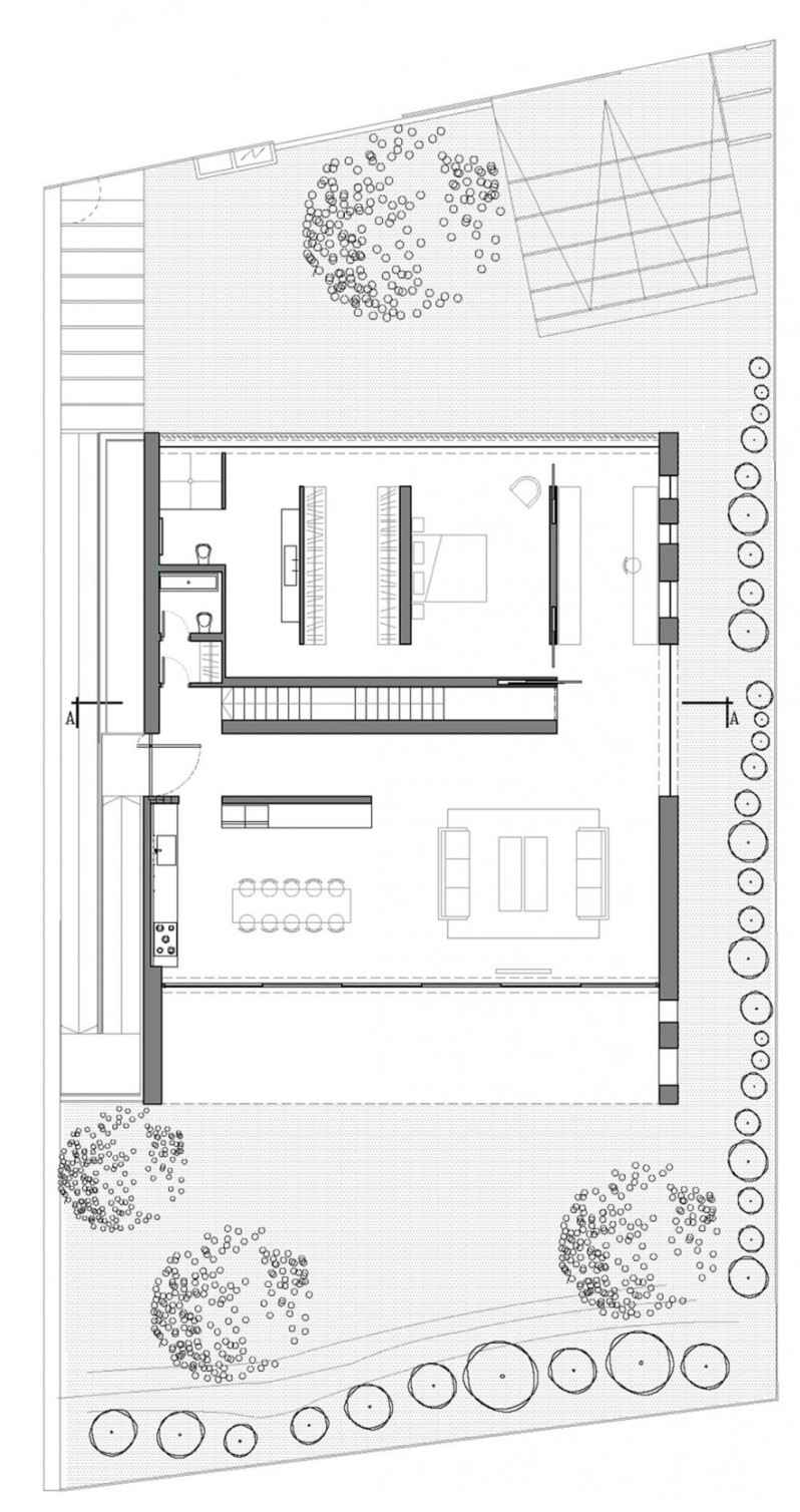
Predĺžené miestnosti s odhaleným betónom vo vnútri na podlahu a strop vytvárajú pocit nekonečna. Prirodzené svetlo prúdi z jednej strany na druhú cez veľké sklenené fronty bez okenných rámov. V záhrade a cez okná je vidieť niekoľko eukalyptových stromov. Dom je skutočne postavený vo svahu a rozkladá sa na dvoch poschodiach. Suterén nie je úplne podzemný a sú v ňom umiestnené spálne. Na prízemí sa nachádza obývacia izba s otvorenou kuchyňou a jedálenským kútom a samozrejme priestor na hranie detí architekta. Nábytok sa vyznačuje súčasným dizajnom s použitím prírodných materiálov a tkanín súčasných výtvarníkov.
Moderný dizajn s pohľadovým betónom vo vnútri pre podlahu a strop

Betón na podlahy a stropy v obytných priestoroch

Otvorená kuchyňa s jedálňou

Fasádny betón pre podlahy, stropy a strechy

Dekoratívne otvory v stene a trávniku v záhrade

Eukalyptové stromy v záhrade domu architekta v Izraeli

Okenné a betónové steny

Obývacia časť na prízemí v dome architekta v Izraeli

Rozdeľte obývací priestor priečkami

Moderný interiér s dizajnovým nábytkom z prírodných materiálov

Rodinný dom navrhnutý architektom pre seba

Ochrana osobných údajov a ochrana pred slnkom s drevenými lamelami na úrovni podlahy

Dom je vo svahu















Plán domu a majetku



* Architekt dom z Pitsou Kedem Architects
