Moderný prázdninový dom pri jazere sa otvára do idylickej krajiny

Pavilón Wirra Willa je minimalistický Chata pri jazere – bohato zasklená fasáda sa otvára do nádhernej krajiny. Majitelia nehnuteľnosti najali architektov z Matthew Woodward Architecture, aby pre rodinu postavili moderné útočisko. Vila by mala byť miestom oddychu a relaxácie, kde by si rodina mohla užiť spolu a stráviť veľa nádherných hodín vonku.
Chata pri jazere s idylickou polohou uprostred prírody

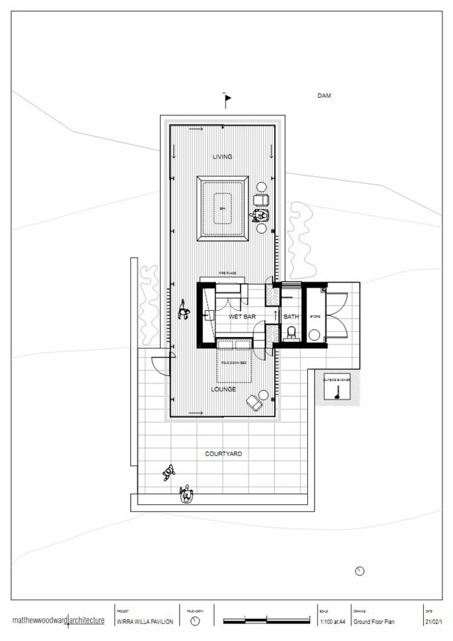
To Chata pri jazere má tvar sklenenej kocky, ktorá sa otvára do nádhernej krajiny a prepúšťa do interiéru dostatok slnečného svetla. Vnútri sklenenej konštrukcie drevené vnútorné steny chránia súkromnú oblasť majiteľa domu. Budova bola prakticky rozdelená na dve časti – priestranný obývací priestor vrátane kuchyne a jedálenského kúta a spálne a kúpeľne. Divokú krásu okolitej prírody si môžete vychutnať z každej časti domu-okná od podlahy až k stropu ponúkajú výhľad na jazero a blízky les. Na priestrannú drevenú terasu bol nainštalovaný malý bazén.
Chata pri jazere – puristicky zariadená

To Chata pri jazere je puristický a ekonomický. Drevená podlaha a obklad stien / taktiež z dreva / vytvárajú vizuálne prepojenie medzi jednotlivými oblasťami. V obývacej izbe vytvára veľký krb na drevo útulnú atmosféru a ponúka možnosť využívania vily v zime. Spálňa je zariadená iba manželskou posteľou a vstavanými nočnými stolíkmi. Jednoduchý nábytok umožňuje, aby si krásna príroda prišla na svoje.
Moderný dizajn kúpeľne – kúpeľňa obložená drevom

Sprchovací kút s krásnym výhľadom na jazero

Záclony zatienia spálňu

Vnútorná a vonkajšia strana sú plynule prepojené – veľké sklenené fronty otvárajú dom do okolia

Priestranný obývací priestor má výhľad na les

Dom bol postavený výlučne z energeticky úsporných materiálov

Vidíte bazén? Je zabudovaný do podlahy a pokrytý dreveným panelom

Dom je na rovinatom pozemku uprostred lesa













