Moderný nábrežný dom v Amsterdame s industriálnym vzhľadom

Architekt Hans van Heeswijk navrhol pre svoju rodinu dom Rieteiland. Atraktívny terén, kde bol dom postavený, ponúka nádherný výhľad na neďaleký park a rieku. Krásna poloha inšpirovala architekta k jeho projektu – Dom pri vode s trendovým industriálnym vzhľadom a zasklenou fasádou.
Dom na vode s pôsobivou konštrukciou

Aby sa dosiahol požadovaný efekt, architekt obložil fasádu hliníkovými panelmi, ktoré chránia súkromný priestor rodiny. Niektoré z nich je možné ovládať a posúvať elektronicky a odhaľovať sklenenú fasádu. Konštrukcia domu sa skladá z troch obdĺžnikových blokov a suterénu. Interiér zaujme vysokými stropmi, otvoreným priestorom a elegantným nábytkom. Vonkajšia terasa ponúka možnosť vychutnať si slnečné dni. Z terasy môže rodina spoločne sledovať krásne západy slnka.
Dom na vode s moderným zariadením

Moderné zariadenie je úplne v industriálnom štýle – od záhradného nábytku z nehrdzavejúcej ocele, cez zaujímavý sklenený stôl v jedálni až po nástenné osvetlenie. V srdci Dom pri vode je súkromná oblasť, ktorá je zatienená drevenými stenami. Kolekcia dverí a okien s názvom „Wave“ bola navrhnutá špeciálne pre tento dom. Obývacia izba je vybavená trendovými policami na knihy, kuchynským ostrovom a veľkou rohovou pohovkou. Ako materiály v konštrukcii a interiéri sa uprednostňovali materiály ako nehrdzavejúca oceľ, sklo, drevo, mramor a plast. Architekt Hans van Heeswijk podarilo vytvoriť kombináciu tradičného a inovatívneho a vybudoval pre seba a svoju rodinu skutočný vysnívaný domov.
Otvorený plán

Dom v Amsterdame – interiér

Malý vstavaný kuchynský ostrovček

Obývacia izba s voľne stojacím krbom

Nástenný dizajn v priemyselnom vzhľade

Vonkajšia terasa

Elegantná fasáda domu s hliníkovými panelmi

Sklenená fasáda s výhľadom na rieku

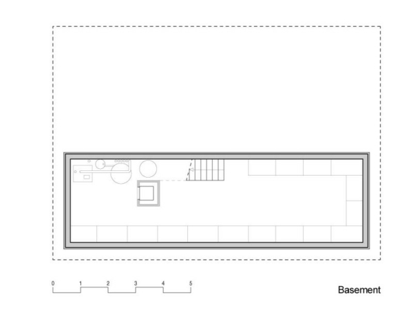
Skica budovy – suterén

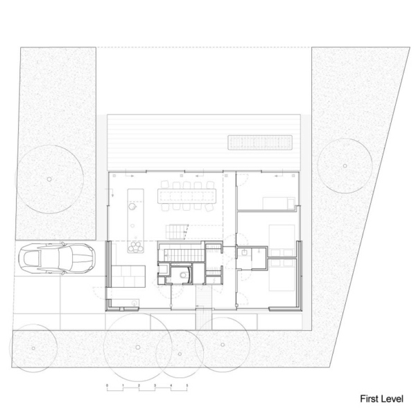
Skica budovy – prvé poschodie

Náčrt budovy – druhé poschodie

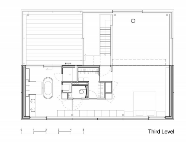
Náčrt budovy – tretie poschodie

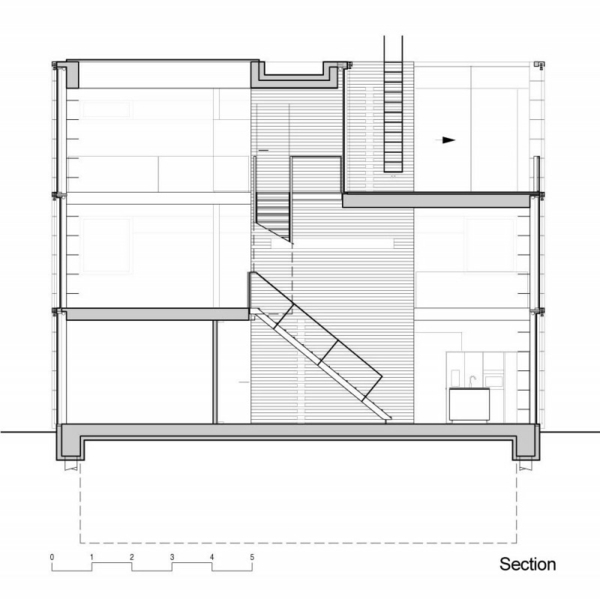
Plán domu – v sekcii

Dom pri vode – plán

Fotografie Studio Csany
