Moderný dom v lese s veľkými oknami
© David Wakely
Toto moderné Dom v lese je z Turnbull Griffin Haesloop a nachádza sa v Sebastopole, Kalifornii, USA. Z lesného domu sa otvára nádherná panoráma, pri ktorej nie je narušený výhľad obyvateľov. Severná fasáda je úplne zasklená a svetlo zaplavuje dom. Architektonický dom je v úplnom súlade s prírodou.
moderný dom v lese s nádherným výhľadom

© David Wakely
Dom s plochou strechou má dlhú stavbu a slúži ako most medzi stromami. Paluby sú umiestnené na každom konci domu s cestičkou vedúcou na jednej strane k bazénu a na druhej strane do garáže. Južná poloha chráni interiér pred príjazdovou cestou a ulicou vyššie, ale necháva slnečné svetlo zaplaviť oknami. Okno vikýra sa týči nad jedálenským kútom, aby rámovalo senzačný výhľad.
moderný dom v lese s príjemným relaxačným priestorom
© David Wakely
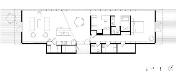
To Dom v lese je skromný, má iba 1 700 štvorcových stôp, ale vďaka otvorenému pôdorysu pôsobí priestrannejšie. Nádherné umelecké predmety zákazníkov zdobia dlhú južnú stenu poličky s knihami. Fasáda je obložená cédrovými panelmi a kovovou strechou a v interiéri je vysoký strop, sadrokartónové steny a podlaha z ipe..
Okná od podlahy po strop
© David Wakely
Drevený interiérový dizajn so šikmou strechou
© David Wakely
Obývacia časť so šikmou strechou
© David Wakely
Orechové dno
© David Wakely
útulná domáca kancelária s rustikálnym dizajnom
© David Wakely
Spálňa so šikmým stropom a dreveným stropom
© David Wakely
Kúpeľňa so sivou mozaikovou dlažbou
© David Wakely
Lesný dom od Turnbull Griffin Haesloop
© David Wakely
malý bazén v blízkosti
© David Wakely
© David Wakely
© David Wakely
