Moderný dom s predným oknom a záhradnou stenou z recyklovaného skla

V dôsledku intenzívnej spolupráce medzi architektmi (Cunningham Architects) a záhradní architekti (Skupina stoličiek ) bol moderný dom postavený s krásnou záhradou. Každý detail bol počas plánovania a výstavby dobre premyslený. Tento proces bol potrebný, aby bol úspešný moderný dom navrhnúť tak, aby vyhovoval malým rodinným oslavám aj veľkým záhradným párty. Ako mestské útočisko bol dom harmonicky začlenený do okolitej krajiny. Architekti vzali do úvahy afinitu zákazníka k modrej farbe, a preto je integrovaná do niekoľkých dominantných prvkov v záhrade a dome..
Moderný dom s krásnou krajinnou architektúrou

Dom v záhrade je elegantným doplnkom modernistického domu na priľahlom pozemku. Niekoľko existujúcich dubov a brestov bolo začlenených do záhradného dizajnu, čím sa vytvoril prírodný plot na ochranu súkromia. Niektoré nízke výsadby sa používajú na veľké štrukturálne vplyvy.
Moderný dom s bazénom

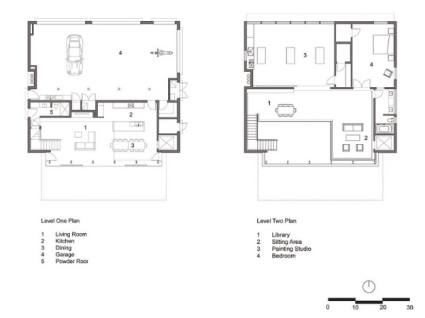
Dvojpodlažný dom je z troch strán obložený drevom Ipe, pričom južná fasáda má veľké predné okno výhľad do záhrady. Drevená strecha chráni túto sklenenú fasádu pred drsným texaským slnkom a vytvára príjemný tieň v oblasti bazéna. Veľké kamenné dosky poskytujú prechod z ulice do domu. Tieto organické, kľukaté kamenné cesty obklopujú aj krb v záhrade.
Záhradná stena a stromy ako obrazovky na ochranu osobných údajov

Na poschodí sa nachádza spálňa pre hostí a maliarske štúdio. Betónová podlaha a patio ponúkajú bezproblémový prechod z obývačky do záhrady. Dom ponúka dostatok priestoru pre veľkú zbierku umeleckých diel. Moderný dom sa nachádza na stavebnej ploche 1600 metrov štvorcových, ale z ulice ho takmer nerozoznáte, pretože je skrytý za záhradnou stenou vyrobenou z nehrdzavejúcej siete a starého skla. Keď je sklenená stena osvetlená zvnútra, nijako neindikuje mestskú oázu za ňou.
Zariadenie interiéru 
otvorené obytné priestory

Drevený obklad

Záhradná stena vyrobená z recyklovaného skla

moderné terénne úpravy

Osvetlenie inštalované v stene

Nočné osvetlenie pri bazéne

Moderný domov v Texase

Architektonický plán

