Moderná stavba samostatne stojaceho rodinného domu – čo patrí k oblasti v príklade z Merana

Neexistuje žiadna lepšia voľba pre pohodlné bývanie ako minimalistický, štýlový a moderný rodinný dom postavený medzi malebnou a romantickou krajinou. Predtým, ako vám predstavíme taký skvelý príklad z Talianska, by sme však najskôr chceli stručne vysvetliť definíciu pojmu. Väčšina rodinných domov je postavená na pozemku, ktorý je väčší ako samotná budova. Pridáte oblasť okolo domu. Obvykle to popisujeme ako nádvorie v severoamerickej angličtine alebo ako záhradu v britskej angličtine. Na väčšine pozemkov sa nachádzajú aj garáže. Z tohto dôvodu často rodinný dom s pristavanou prednou garážou posmešne označujeme ako ňufák. V takýchto prípadoch je príjazdová cesta bližšie k ulici ako ktorákoľvek iná časť domu.

V predindustriálnych spoločnostiach väčšina ľudí prežila väčšinu svojho života v bytových domoch. Dieťa žilo so svojimi rodičmi od narodenia do manželstva. Potom sa zvyčajne presťahovalo k rodičom muža (patrilokálny) alebo ženy (matrilokálny). Starí rodičia teda mohli počas pracovných dní pomáhať s výchovou malých detí. Takto vyzerala stredná generácia, ktorá sa starala o svojich starnúcich rodičov. Tento typ usporiadania tiež ušetril časť úsilia a materiálov použitých na stavbu a v chladnejších oblastiach na vykurovanie. Ak sa ľudia museli presťahovať na nové miesto alebo boli dostatočne bohatí, mohli by postaviť alebo kúpiť dom pre vlastnú rodinu, ale nebolo to zvykom..
Rodinné domy sú v dnešnej dobe väčšinou bežné na vidieku a na predmestiach a dokonca aj v niektorých mestských oblastiach v Novom svete a Európe, ako aj v bohatších enklávach v rámci tretieho sveta. Najčastejšie sa vyskytujú v regiónoch s nízkou hustotou obyvateľstva a vysokými príjmami.
Samostatne stojaci rodinný dom – moderný architektonický štýl pre väčšie pohodlie

Termín „samostatný rodinný dom“ opisuje, ako sa stavia dom a kto v ňom býva. Okrem toho neexistuje žiadna predpísaná veľkosť, tvar ani poloha. Pretože sú len zriedka obklopené inými budovami, je možná veľkosť jedného rodinného domu obmedzená iba rozpočtom staviteľa a miestnymi zákonmi..

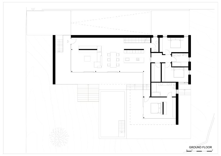
V našom prípade je „dom T“ rodinný dom v Merane, ktorý pozostáva z prízemia a suterénu s garážou. Architekti Patrik Pedó a porota Anton Pobitzer z „monovolume architecture + design“ navrhli dve budovy na rôznych úrovniach. Tieto sú podľa toho prepojené s vnútornými schodiskami, aby sa moderným spôsobom prispôsobili svahovitému terénu ako rodinný dom. Jasné línie návrhu podčiarkuje prevedenie pohľadového betónu a realizácia sklenených fasád. Vďaka tomu komplex budov vyzerá ľahko a jednoducho.

Posuvné sklenené dvere a okná sú navrhnuté ako celosklenené konštrukcie z trojskla, aby mohli obyvateľom ponúknuť čo najlepší komfort. Strecha je rozložená ako plochá so štrkom. Obývacia časť sa otvára na priestrannú terasu a bazén. Zjavne plávajúce schodisko vedie do záhrady.

Architektúra sama absorbuje rozdiel medzi vytváraním výšok terénu. Oddeľujú dve veľké vonkajšie plochy, zodpovedajúci verejný vchod a súkromné ubytovanie. Nachádza sa tu aj bazén a relaxačná časť.









