Moderná architektúra sa tu dokonale prispôsobuje kopcovitej krajine!

Architektonická kancelária „TWS & Partners “bola poverená výstavbou horskej vily v Bandungu, Západná Jáva, Indonézia. Projekt dostal názov „Visiaca vila“ a boduje modulárnou modernou architektúrou, ktorá sa svojim geometrickým tvarom dokonale prispôsobuje kopcovitej krajine. Budova je ďaleko od hustej premávky v meste a ponúka pohodlné útočisko s príjemnou atmosférou. Moderná vila by mala spojiť veľkú rodinu a poskytnúť každému členovi rodiny vlastný osobný priestor. Ťažiskom projektu je multifunkčný vonkajší priestor, kde je možné organizovať rôzne akcie.
Architektúra ponúka veľkolepý výhľad

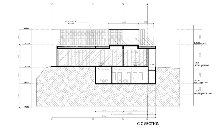
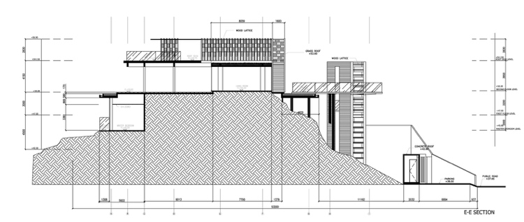
Poloha ťaží z krásneho okolia, s výhľadom na hlboké údolie a z blízkosti lesa, čo dáva pocit pokoja a bezpečia. Architektúra bola pôvodne koncipovaná ako skladané škatule, ktoré boli otočené okolo svojej rohovej osi. Zážitok z chôdze je teda formovaný z rôznych perspektív. Táto stratégia umožňuje orientáciu miestností na niekoľko strán a takmer 270-stupňový výhľad na okolité údolia. Tento aspekt mal pre architekta v procese návrhu zásadný význam.

Budova má vežu, ktorá začína na úrovni ulice / garáže a vedie na druhé poschodie. Tam prídete k drevenému mostu, ktorý prechádza ponad vodný prvok. Keď idete zlou cestou, vojdete do obývačky, kuchyne a jedálne. Vnútorné aj vonkajšie priestory sú vedené predovšetkým v zemitých tónoch. Teplá farebná paleta umožňuje vile prirodzenú integráciu do krajiny. Vnútorný priestor ponúka pokojnú a uvoľnenú atmosféru.

Hlavná spálňa a obslužný priestor sú na prvom poschodí a sú od seba oddelené svahom. Zámerom je, aby obyvatelia mali viac súkromného priestoru, pričom obsluhovaná oblasť slúži len na upratovanie a bezpečnosť. Do každej oblasti sa dostanete z druhého poschodia dvoma rôznymi schodmi.

Z veľkej vyhliadkovej plošiny v hornej časti je vidieť celú krajinu. Ponúka tieň na otvorenej drevenej terase pod ním. Na jednej strane otvorenej strešnej terasy je pohodlný záhradný nábytok. Obyvatelia tu môžu stráviť večer s priateľmi / rodinou alebo si počas dňa užívať slnko. Na druhej strane je priamy prístup do súkromnej záhrady a k bazénu.

Vila je orientovaná tak, aby plne využívala polohu slnka a smer vetra. To prináša do domu citeľne čerstvý vietor, zatiaľ čo rozsiahle sklenené otvory ponúkajú maximálne denné svetlo. Budova bola plánovaná tak, aby bola odolná voči poveternostným vplyvom, aby bola zaistená maximálna ochrana pred živlami. Na tento účel boli použité vhodné izolačné materiály a zasklenie okien, ktoré znižujú tepelné straty bez zvýšenia vlhkosti v miestnosti.

Dostatočné vetranie zaisťuje zdravú kvalitu vzduchu, čo zvyšuje komfort a zdravie obyvateľov. Nekonečný bazén funguje ako prírodná klimatizácia a vytvára chladný, osviežujúci vánok.







Ďalšie projekty od TWS & Partneri je možné si ich pozrieť na ich webových stránkach
