Fasáda domu z dreva umožňuje „Helen Street House“ v Seattli splynúť s prírodou

V roku 2017 navrhli architekti z mw | works architecture + design fascinujúci dom v americkom Seattli. Na prvý pohľad je fasáda domu z dreva viditeľná a okamžite prebúdza asociáciu s útulnosťou, teplom a pohodlím. Klient spočiatku nahradil vidiecke prostredie východne od Seattlu dynamickým a kultúrnym životom mesta. Tiché prostredie a uvoľnený každodenný život vo vašom starom dome vás prinútili znova preložiť dom. Starosť bola príliš veľká pre dvoch ľudí a dvoch malých psov. Cieľom projektu obnovy vášho súčasného domova bolo vytvoriť miesto pohody, ktoré vyhovuje vášmu vkusu a je prispôsobené vašim aktivitám..

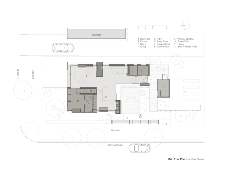
Ulica Helen Street je severne od údolia Madison a susedí s arborétom Washington Park. Požadovala sa jednoduchá, ale moderná štruktúra s jednoduchými a jednotnými materiálmi, ktoré je možné realizovať so skromným rozpočtom. Dom by mal byť zaplavený svetlom a čo najotvorenejší. Napriek tomu by malo byť zaručené určité súkromie a zároveň transparentnosť voči okolitej krajine. Tam, kde bola potrebná väčšia transparentnosť, boli šikovne použité veľké presklené čelá z posuvných sklenených dverí. Majitelia chceli bývať v dome s prírodou milujúcim dizajnom, ktorý harmonicky splýva s okolitou prírodou. Fasáda dreveného domu dokonale spĺňa tieto požiadavky a umožňuje budove zjednotiť sa s krajinou.

V dvojpodlažnom dome sa nachádza obývacia izba, kuchyňa, jedálenský kút a knižnica. Schody vedú do súkromnej oblasti na poschodí. Horné poschodie, ktoré sa vznáša nad zvyškom budovy, je tiež obložené prírodne zvetraným cédrovým drevom. Okrem nádhernej fasády domu je tu ešte jeden dizajnový prvok, ktorý skutočne púta pozornosť. „Helen Street House“ má svetlé, zelené vnútorné nádvorie v strede lokality, ktoré zaisťuje požadované súkromie aj vonku. Slnečnejšie južné a západné strany boli vyhradené záhradám. Zelený plot spája hranicu s nádhernou krajinou.

Od skvelého konceptu dizajnu až po dokončenie, tento vysnívaný dom bol vytvorený v úzkej spolupráci s majiteľmi domov. Konečným výsledkom je nepochybne idylický domov v harmónii s prírodou.













* projekt od mw | funguje architektúra + dizajn
