Drevo na fasádu a do interiéru – malý schovaný dom pri jazere

Austrálske architektonické štúdio Branch Studio Architects dokončilo v roku 2016 projekt multifunkčného útočiska v austrálskom Balnarringu. Malá budova môže slúžiť viacerým účelom a je primárne navrhnutá ako štúdio jogy a domáca kancelária. Nachádza sa priamo na jazere a je v súlade s prírodou. S cieľom zintenzívniť prirodzený účinok miesta ústupu, prevažne Drevo na fasádu a používa sa ako materiál na vnútorné práce.
Drevo na fasádu s kontrastnou pozinkovanou rámovou konštrukciou

Útulný úkrytový dom je postavený priamo pri jazere a je ideálny ako miesto na odpočinok od uponáhľaného každodenného života. Drevo použité na fasádu vyzerá príjemne a ladí s okolitou prírodnou krajinou. Obklad z jaseňového dreva kontrastuje s pozinkovanými rámami okien, ktoré sú navrhnuté s čiernou povrchovou úpravou.
Drevo na fasádu s vyčnievajúcimi oknami

Útočisko pri jazere je navrhnuté s konzolovými oknami po stranách a oknom od podlahy až k stropu s výhľadom na jazero. Dennú posteľ môžete umiestniť pred okno, aby ste mohli relaxovať pri hladine vody. Bočné okná prepúšťajú do miestnosti viac svetla a ponúkajú nádherný výhľad na prírodu.
Interiérový dizajn a interiérový dizajn útočiska

Drevo na fasádu je v súlade s preglejkou, ktorá sa používa na vnútorné práce. Časti stien v budove je možné otvárať a zatvárať ručne, aby ste si miestnosť podľa potreby sami prerobili. V zadnej časti útočiska je rozkladacia posteľ, ktorá premení izbu na penzión. Skladací stôl, naopak, premení interiér na domácu kanceláriu. Len kúpeľňa sa od zvyšku interiéru líši farbami a materiálmi. Steny sú vyrobené z vrazenej zeme v tmavošedej farbe a namiesto stropu je v kúpeľni veľké strešné okno.
K vchodu vedie nízka stena

Útočisko obklopené prírodou

Malé jazerné útočisko v Austrálii

Útočisko v prírode

Fasádny dizajn s drevom a vrazenou zeminou

Svetlo zaliaty interiér s výhľadom na jazero

Preglejkové panely na steny a stropy

Podľa potreby prerobte multifunkčnú miestnosť

Malá kuchyňa so zadnou stenou z mosadze

Svetlom zaliata kúpeľňa so svetlíkom

Kúpeľňa v tmavošedej farbe s medenými rúrkami

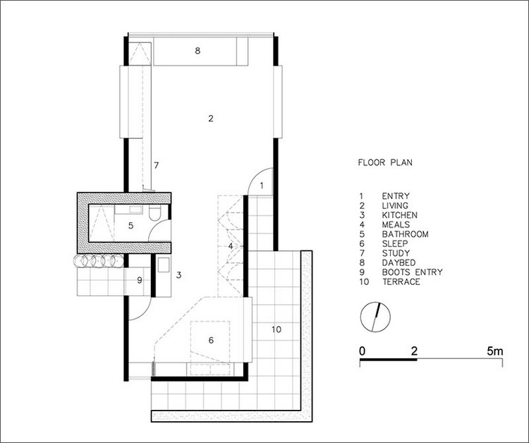
Dispozícia útočiska

* Architektúra a dizajn od Architekti pobočkového štúdia
