Drevená priečka a kovové posuvné dvere premenia otvorenú pracovňu na izbu pre hostí

Tento moderný rodinný dom, ktorý bol navrhnutý pre pár a ich dvoch psov, kombinuje neutrálne farby a prírodné materiály. Nachádza sa v Španielsku, presnejšie v Madride, a má obytnú plochu 200 metrov štvorcových, ktorá bola optimálne využitá na vytvorenie dokonalého komfortu bývania. Architekti z Ventura Estudio vytvorili koncept otvoreného bývania s rovnomerne preplnenými plochami a otvorenými priestormi, pričom nezabúdali na nevyhnutné súkromie. V našom článku sa dozviete, ako je to zaručené a aké materiály boli na zariadenie nábytku použité. Pozrite sa do vnútra domu a zistite, na aký účel bola použitá praktická drevená priečka.
Drevená deliaca stena kombinovaná s odolnými materiálmi

Ako už bolo spomenuté, mladý pár má dvoch psov. Z tohto dôvodu bol kladený dôraz na materiály, ktoré im vydržia. Napriek tomu bolo teplé, moderné a príjemné prostredie vytvorené použitím útulných farieb a súčasných materiálov. Betón, betónový vzhľad a drevo sa pravidelne striedajú a čiastočne monochromatický nábytok je pestrý. To platí aj pre farby, kde čierna je akcentom a bola zvolená pre rôzne kusy nábytku a steny. Neprehliadnuteľné sú pôvodné posuvné kovové dvere, ktoré poskytujú prístup do hosťovskej izby s vlastnou terasou a ktoré je možné zamknúť alebo nechať ľubovoľne otvorené bez toho, aby vás rušili.

Vďaka tomu je bezproblémový prístup do všetkých miestností. Tento dizajn otvorenej miestnosti je opticky podporený použitím jednej podlahovej krytiny pre celý interiér. Čierne kovové posuvné dvere v kuchyni navyše nie sú jedinou možnosťou pre otvorené priestory v tomto dome. Okrem toho existuje aj niekoľko pekných priečok z dreva, ktoré sú jednoduché, ale vyžarujú teplo a vďaka jednoduchému vzhľadu pôsobia moderne a štýlovo. Vnútri spálne je drevená priečka v podobe dlhých skladacích dverí, ktoré preberajú úlohu rolety a oddeľujú priestor na spanie od okna a zároveň od chodby. Stacionárna drevená priečka v tej istej miestnosti oddeľuje priestor na spanie od kúpeľne. Za zmienku stoja aj druhé čierne kovové dvere v jedálni, ktoré vedú do spálne.
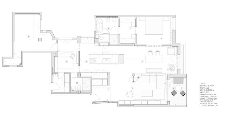
Otvorené obytné priestory

V opačnom prípade sa dá povedať, že dom bol rozdelený vo forme dvoch osí, ktoré prebiehajú horizontálne a vertikálne. Ich križovatka je v jedálni, ktorá funguje aj ako pracovný priestor. V zásade možno všetky obytné priestory využívať na rôzne činnosti v závislosti od dennej doby. Hosťovská izba teda slúži ako domáca kancelária, ak nie je obsadená. Posteľ je zabudovaná priamo do dreveného obkladu steny a v prípade potreby ju možno sklopiť. Do všetkých ostatných obytných miestností a oblastí je možné vstúpiť okolo priesečníka uvedených osí.
Skrytý úložný priestor za drevenou stenou

Drevené priečky nie sú jediným zástupcom tohto materiálu. Vo veľkom sa dá nájsť aj v kuchyni. Panely sa tam prebúdzajú, ako keby to bola drevená deliaca stena alebo obklad steny. V skutočnosti však ide o vstavané skrine, ktoré slúžia na uloženie kuchynského a stravovacieho riadu a iného riadu. Čierne prvky boli integrované tak, aby sa všetko drevo nestalo príliš dobrou vecou. Okrem kuchynského ostrovčeka sú to aj nika vo vstavanej skrini a už spomínaných kovových dverách.
Neutrálne a príjemné hlavné farby

Všetky štyri hlavné farby nájdete v dome a zdobia interiér neuveriteľne harmonickým spôsobom. V prvom rade je to teplá farba dreva, ktorá sa používa na rôzne kusy nábytku, drevenú deliacu stenu v spálni a ďalšie drevené deliace steny. Druhá farba je šedá. V tejto farbe upútajú pozornosť betónové trámy v obývacej izbe. Pohovka a podlahová krytina, ako aj závesy v spálni a obývačke sú tiež sivé. Biela je treťou farbou pokožky, ktorá dodáva interiéru svetlú atmosféru a dokonale sa prispôsobuje ďalším dvom farbám. Steny sú navrhnuté v bielej farbe, ale aj časť nábytku, ako sú vstavané police v obývacej izbe alebo stoličky Eames v jedálni, skrinka a polica v kuchyni a rôzne dekoračné predmety.

Čierna farba je skôr prízvukom a veľkým kontrastom k ostatným farbám a drevenej priečke, ale zároveň je použitá tak početne, že ju možno vnímať aj ako hlavnú farbu. Okrem prvkov už spomínaných v kuchyni a systémov kovových posuvných dverí slúži čierna aj ako farba umývadla v kúpeľni. Okrem toho existuje mnoho menších dekoratívnych predmetov a prvkov, ako sú žiarovky, zárubne, bočné stolíky, jedálenské stoly a rámy stoličiek, ktoré tiež dodávajú nábytku malý nádych industriálneho štýlu.
Drevená priečka. Konkrétny vzhľad a ďalšie

V nasledujúcom texte sa môžete bližšie pozrieť na vnútro domu a získať prehľad nielen o zariadení a farebnom prevedení, ale aj o rozložení miestnosti z vtáčej perspektívy na základe pôdorysu. Nechajte sa inšpirovať myšlienkou zariaďovania s drevenou priečkou, betónovým vzhľadom a kovovými prvkami, ako aj otvorenými a zároveň multifunkčnými miestnosťami a použite svoje obľúbené nápady na stavbu vlastného domu..










Dizajn od Ventura Estudio.
