Dovolenkový dom vo Švajčiarsku podobný kockám s panorámou snov

Kocka-ako Prázdninový dom vo Švajčiarsku fascinuje modernou fasádou z pohľadového betónu a dreva. Budova navrhnutá renomovanými architektmi Lischera Partnera sa nachádza v blízkosti budovy vo Vitznau a ponúka vysnívanú panorámu nádhernej prírody.
Dovolenkový dom vo Švajčiarsku inšpiruje kreatívnym dizajnom fasády

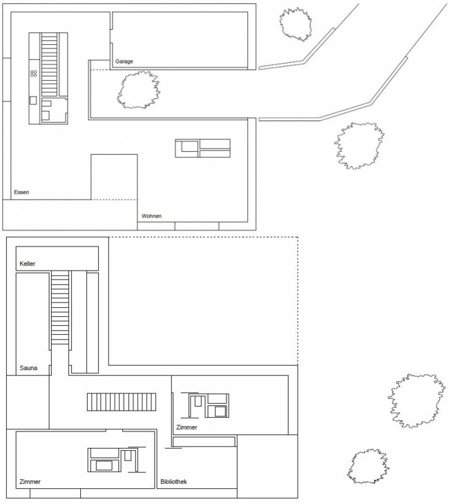
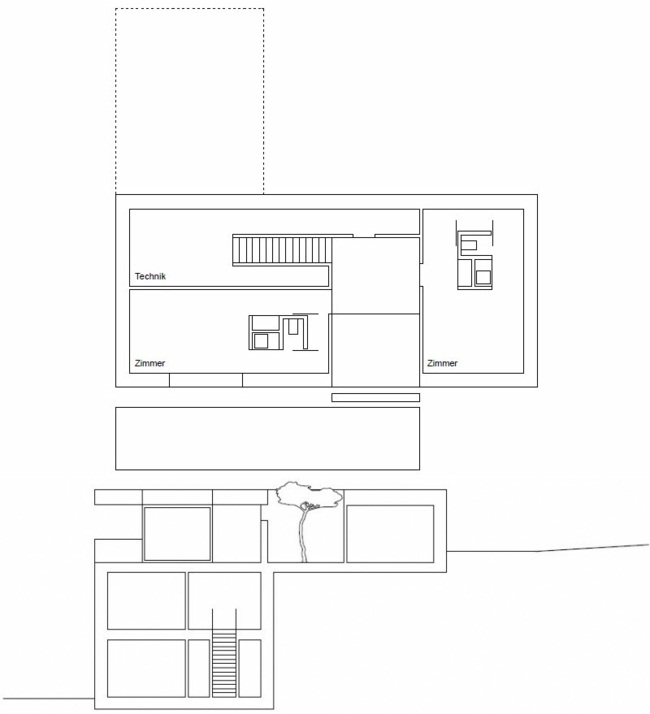
Krásna krajina inšpirovala architektov Lischerov partner na ich vynikajúci projekt. Trojposchodový Prázdninový dom vo Švajčiarsku sa nachádza priamo na svahu a perfektne sa integruje do okolia. Mnoho okien a terás ponúka nádherný výhľad na malebnú prírodu. Fasáda fascinuje kontrastným dizajnom – drsná krása pohľadového betónu je v kontraste k teplu drevených prvkov. Neutrálne farby vytvárajú vizuálne spojenie s okolitými skalami. Monopitchová strecha dopĺňa celkový vzhľad. Vďaka kubickému tvaru je budova tichou krásou.
Dovolenkový dom vo Švajčiarsku – drevo charakterizuje interiér

Interiér od Prázdninový dom vo Švajčiarsku je tvarovaný drevom. Prírodný materiál je široko používaný – ako podlaha, obklad stien a dokonca aj v stropnom prevedení. Vďaka svetlej farbe dreva bude interiér pôsobiť domácky. Okná od podlahy k stropu prepúšťajú do obývačky dostatok slnečného svetla. Na troch poschodiach sa nachádza obývacia izba, kuchyňa s jedálenským kútom a niekoľko spální. Izby sú striedmo, ale veľmi vkusne zariadené. V kuchyni je vstavaná kuchynská linka s nerezovou pracovnou doskou. Jedáleň v minimalistickom štýle ponúka posedenie pre rodinu a priateľov. Absolútnym vrcholom je obývacia izba – útulné posedenie ponúka príležitosť relaxovať v príjemnej atmosfére.
Prázdninový dom od Lischer Partner Architects je vynikajúcim projektom s modernou víziou, ktorý sa vyznačuje úspešnou kombináciou materiálov a efektívneho dizajnu fasády.
Moderná kuchyňa s jedálenským kútom

Kuchyňa je vybavená zadnou stenou z nehrdzavejúcej ocele

Moderný krb v obývacej izbe

Fantastický výhľad na okolie z balkóna

V interiérovom dizajne dominuje materiál drevo

interiér charakterizujú minimalistické obdĺžnikové tvary

Pohodlné sedenie a veľké okná ponúkajú priestor na relaxáciu

Okná v spálni odhaľujú panorámu snov




TresARCA- moderný rodinný dom s bazénom na okraji Las Vegas




