Dom v Slovinsku kombinuje tradíciu a modernu

Ten moderný Projekt domu v Slovinsku, ktoré by sme vám chceli predstaviť nebolo postavené od nuly. Jedná sa o starý monolitický dom, ktorý bol zrekonštruovaný a modernizovaný tak, aby vyhovoval potrebám šťastných majiteľov, mladého manželského páru. Projekt realizovala slovinská spoločnosť dekleva gregorič arhitekti so sídlom v Ľubľane. Samotný dom sa nachádza vo Vrhovlje a predstavuje nádhernú súhru tradičného a moderného.
Projekt domu v Slovinsku s tradičnou kamennou fasádou

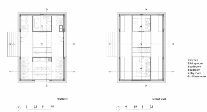
Projekt domu v Slovinsku pozostáva z dvoch poschodí. Prvá predstavuje verejnejší priestor, v ktorom sa môžete stretnúť s priateľmi. Odtiaľ máte vďaka trom veľkým štvorcovým oknám tiež nádherný výhľad na krajinu obklopujúcu dom. K dispozícii je kuchyňa s jedálňou, kúpeľňa a obývačka s malou kancelárskou časťou s priestorom na pracovný stôl. Horné poschodie je opäť súkromnejšou časťou so spálňou a detskou izbou. Obe spálne v dome Design v Slovinsku sú prepojené chodbou. Slúži na existujúcom stole ako pracovná aj herná plocha. Obe spálne ponúkajú nádherný výhľad na hviezdnu oblohu cez strešné okná.
Návrh domu v Slovinsku – obývačka

Návrh domu v Slovinsku v interiéri je kontrastom k vonkajšej kamennej fasáde, pretože tam bolo použitých veľa svetlého dreva. Miestnostiam dodáva príjemnú atmosféru, pretože sivý betónový strop by inak riskoval pomerne chladné prostredie. Samotná strecha nebola oddelená od miestností stropom, ale zachovala si svoj zúžený tvar. Z tohto dôvodu sa zdá, že každá z dvoch spální je malým domom. Všetky tieto veci spoločne dodávajú modernému dizajnu domu v Slovinsku jedinečné kúzlo.
Návrh obývačky s kancelárskou časťou

Nápad na originálny dizajn – stôl so vstavanou televíziou

Funkčné riešenie schodiska v dome – vstavaná polica

Moderný kuchynský dizajn domu s jedálenským kútom

Konštrukcia schodiska v dome je originálna

Horné poschodie slovinského domu

Spálňa je vyrobená zo svetlého dreva
















Dizajn od dekleva gregorič arhitekti.
