Chata z smrekovca na švajčiarskom jazere s lyžiarskou oblasťou

Títo Chata z smrekovcového dreva s rustikálnym nádychom sa nachádza na romantickom jazere v blízkosti lyžiarskych svahov vo Švajčiarsku. Jazero sa nazýva Lac de Joux a je známe aj turistickými a cyklistickými chodníkmi, ktoré ponúka. A dizajn chaty tiež perfektne zapadá do oblasti, pretože pripomína lyžiarsku chatu a dýcha z nej rovnaká teplá atmosféra, ako by sa dalo očakávať. Pochádza od architektov z Kunik de Morsier architees.
Chata z smrekovcového dreva – priestor na sedenie so sedacími vakmi a hojdacou sieťou

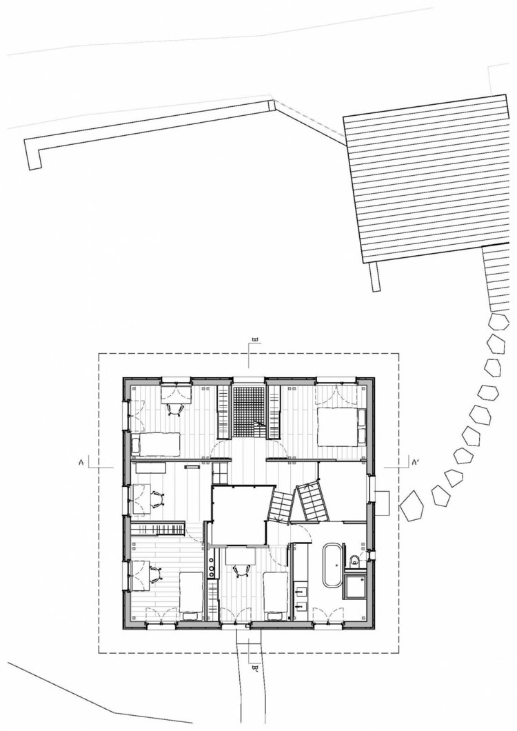
Keďže chata z smrekovca je umiestnená vo svahu, spodné poschodie bolo upravené tak, že pozostáva zo štyroch úrovní. Nájdete tu obývaciu izbu s kuchyňou a jedálenským kútom, kúpeľňu a práčovňu. Aj vo vnútri zaujme štýlom chaty, pretože je celý vyrobený z smrekovcového dreva. Efektívna je aj schodisková plocha domu. V kolibe z smrekovcového dreva slúži ako zábradlie sieť, ktorá v hornej časti nad schodiskom predstavuje aj leňošenie pripomínajúce hojdaciu sieť.
Kuchyňa chaty z dreva

Priestorné je aj druhé poschodie v chate z smrekovcového dreva. Nájdete tu štyri spálne, z ktorých jedna má dokonca vlastnú kancelársku miestnosť. K dispozícii je tiež veľká kúpeľňa s vaňou. Ak chcete vidieť viac z tohto pôsobivého domu a načerpať inšpiráciu, stačí sa pozrieť nižšie.
Smrekovcové drevo v jedálni a v kuchyni

Obývacia časť z smrekovcového dreva s terasovými dverami do záhrady

Chata z smrekovca – ležadlá na druhom poschodí so sieťou

Zábradlie chaty vyrobené zo siete

Obloženie steny z smrekovcového dreva a poklop v stene

Chata z smrekovcového dreva s modrými okenicami

Chata so sedlovou strechou a rustikálnym vzhľadom













Dizajn od Architekti Kunik de Morsier.
