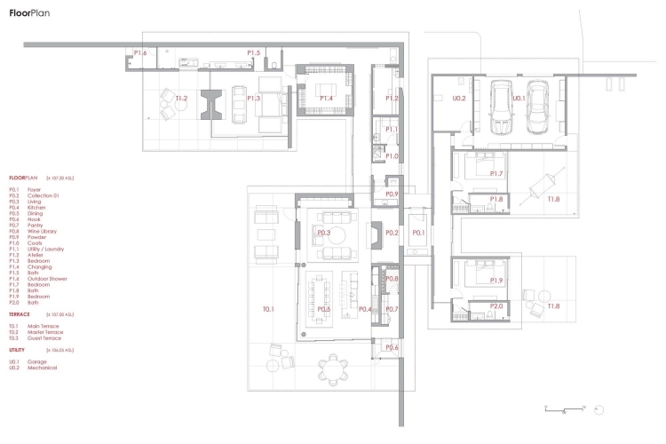
Céder, kameň a sklo v kalifornskom dome

Tento dom sa nachádza na rozsiahlom pozemku lemovanom stromami a vinicami, napriek tomu blízko centra mesta. Projekt pozostáva z dvoch domov spojených sklom. Každý dom chránia pred rušnou cestou dve steny v tvare písmena L – jeden z kameňa a jeden z cédrového dreva. Za týmito múrmi je veľa nádvorí a terás. Každá záhrada má svoje vlastné prostredie. Cédrové drevo, prírodný kameň a sklo tvarujú interiér aj exteriér domu. Každý prvok dizajnu je v súlade s okolitou krajinou.
Cedrové drevo, prírodný kameň a sklo sú harmonicky kombinované

Vstupná záhrada je navrhnutá ako veranda podobná verande, ktorá vedie k masívnym, ručne vyrobeným dverám z jedného stromu, ktorý spadol z pozemku. Prednými dverami sa dostanete do malého preskleného foyer, ktorý spája dve hlavné steny domu. Na jednej strane sú posuvné dvere opláštené cédrovým drevom, na druhej strane – priechod pevnou kamennou stenou. Posuvné dvere sa otvárajú do záhrady a hosťovských izieb, pričom z portálu sa vchádza do hlavného domu.
Vnútri cédrové drevo, prírodný kameň a betón

Hlavný dom sa otvára do viníc a ponúka 270 -stupňový výhľad na okolité pohorie Mayacamas, horu St. Helena a Stags Leap. Izby majú výhľad na vinice na juhu, Stone Mountain, horu Vedeer a okolité mesto. Kryté terasy sú miestom, kde si môžete užívať prírodu po celý rok.
Architekti: Jørgensen Design
Miesto: Kalifornia, USA
Rozloha: 470 m2
Rok 2014
Fotografie: Fotografia Joe Fletchera
priestranná spálňa

Sklenené posuvné dvere sa úplne otvárajú a spájajú hranice medzi vnútorným a vonkajším priestorom

Triesky a skaly pre prirodzený vzhľad

malý bazén za domom

Strom magnólie a okrasné trávy

Chodník k vchodu do domu
















