Zrekonštruovaný dovolenkový dom na severofrískom ostrove Föhr

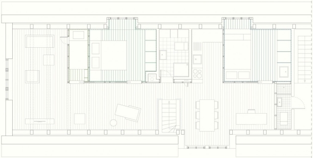
V Alkersume, na malom severomorskom ostrove Föhr, je čerstvý zrekonštruovaný prázdninový dom. Je to projekt švédsko-talianskeho dua Karin Matz a Francesco Di Gregorio. Architekti úplne prestavali bývalý severofrízsky statok a v interiéri zachovali kúzlo frízskej kultúry. Rekreačný dom s rozlohou 50 metrov štvorcových je postavený v typickom frízskom štýle – slamená strecha, steny z červených tehál, biele mrežové okná a dvere. Tím sa prispôsobil tomuto architektonickému štýlu a použil iba tradičné materiály, aby integroval kultúru Severného Fríska do interiéru..
Zrekonštruovaný dovolenkový dom na ostrove Föhr

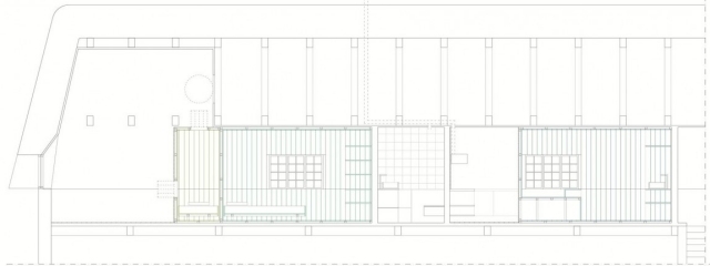
Podkrovie bolo najskôr úplne vypitvané a prerozdelené. Výsledkom boli tri malé spálne, ktoré farbou a veľkosťou pripomínajú kajuty. Sú obložené borovicovými doskami natretými na modro. Kúpeľňa a malá kuchynka sú medzi dvoma väčšími spálňami. Oproti nej je dostatok miesta na jedálenský kút. Vďaka svetlému borovicovému drevu a bielym stenám pôsobí tento otvorený priestor napriek šikmej streche priestrannejšie. Na druhom konci miestnosti je obývacia izba so schodiskom do prízemia. Ich dizajn má určitý námorný nádych, pretože modré laná obklopujú schodisko a slúžia ako ochrana pred pádom. Sú natiahnuté na oboch stranách medzi stropom a podlahou a pripevnené malými kovovými uhlami.
Zrekonštruovaný dovolenkový dom so severofrízskym šarmom

V tradičných severofrízskych domoch bývala v obývačke najmenej jedna stena pokrytá maľovanými dlaždicami, čo svedčilo o prosperite rodiny. Preto sa aj Die Gregorio a Matz rozhodli pre lesklé biele kameninové dlaždice vo formáte 10 × 10 cm. Na stenu medzi spálňou a obývacím priestorom bolo použitých viac ako 3000 dlaždíc. Prostredníctvom ručne vyvŕtanej diery v strede každej dlaždice je možné vidieť modré pozadie.
bolo použitých viac ako 3 000 dlaždíc

zaujímavá ochrana proti pádu na schodisko

svetlo zaliata jedálenská časť

mierne šikmý strop

malá kuchynka

svetlé borovicové drevo



















Fotografie Francesco di Gregorio
