Interiér vyrobený z dreva a betónu v modernom bungalove „Cabin 2“

Chcete si postaviť rekreačnú chatu a stále hľadáte správnu inšpiráciu? Tento článok je presne o tom. Radi by sme vám predstavili zaujímavú prístavbu už existujúceho zrubového domu zo 60. rokov minulého storočia v lese, ktorý je však úplne nezávislý a vďaka svojmu modernému dizajnu a Interiér z dreva a betónu dojem. Dizajn takzvanej „Cabin 2“ pochádza od spoločnosti Maddison Architects a nachádza sa v Austrálii.
Interiér z dreva a betónu – veľká sivá sedačka v obývačke

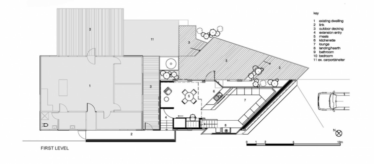
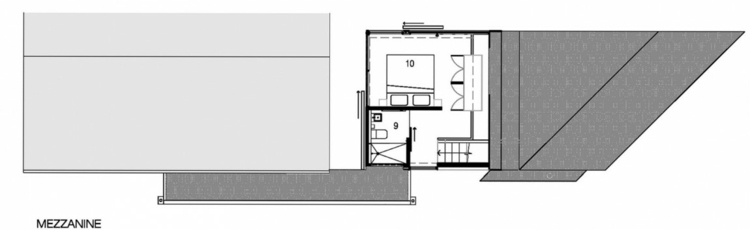
Pôsobivá strecha bungalovu začína na úrovni zeme a zdá sa, že pochádza priamo zo zeme. Bungalov s interiérom z dreva a betónu sa tak znižuje a vďaka tomuto začleneniu do prírody takmer dostáva kamufláž. Vnútri ponúka všetko, čo potrebujete na dovolenke, aby ste sa cítili pohodlne a uvoľnene. Obsahuje obývaciu izbu s veľkou pohovkou a krbom, kuchyňu a na druhom poschodí spálňu s veľkou posteľou a malú kúpeľňu..
Interiér drevo a betón – krb v obývačke

Kombinácia dreva a betónu je zaujímavá aj do interiéru. Vďaka tomu bude mať bungalov vo vnútri moderný vzhľad bez toho, aby stratil príjemnú atmosféru, ktorú by ste od dovolenkovej chatky očakávali. Okrem toho sú tu veľké predné okná, ktoré prepúšťajú do miestností dostatok denného svetla. Priamo pred ním sa nachádza vstavaný kvetinový box a tiež priestranná terasa s drevenou podlahou, na ktorej si môžete užívať slnko. Pozrite sa na zaujímavejšie fotografie bungalovu a interiéru z dreva a betónu nižšie.
Interiér kuchyne a obývačky s betónovými schodmi

Romantický interiér spálne s dreveným obložením steny

Priestor na čítanie s drevenými stenami a betónovou podlahou

Nástenný obklad z dreva do interiéru v kúpeľni

Drevené trámy ako súčasť fasády bungalovu

Terasa s drevenou podlahou

Fasáda rekreačnej chaty s dreveným obkladom stien a betónovými trámami










Dizajn od Maddison Architects.
