Betónový bungalov ako prázdninový dom pri mori v Nórsku

Mnohí snívajú o skromnom prázdninovom dome pri mori. Architekti ako Lund Hagem si tieto sny plnia a stavajú ich. A Betónový bungalov so 75 metrov štvorcových obytnej plochy visí v skale a dostanete sa k nim iba loďou. Slúži ako letné sídlo pre štvorčlennú rodinu, ktorá rada trávi prázdniny spoločne obklopená vodou.
Betónový bungalov visiaci v skale ako prázdninový dom pri mori

Betónový bungalov však nezodpovedá jeho predstave, ale rozširuje ho o formálny jazyk a prvky modernej architektúry. Použitie tradičných stavebných materiálov, ako je betón, drevo, oceľ a sklo, ale veľmi šikovne implementované v rôznych oblastiach, spĺňa očakávania pre architektom navrhnutý dom presne pre jeho obyvateľov a navrhnutý podľa jeho polohy..
Architekti betónový bungalov na pobreží Nórska

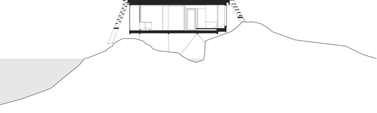
Celý obytný priestor je rozdelený medzi dve zložky na jednej obytnej úrovni. Obývacia izba je otočená k moru a má vonkajšie steny vyrobené výhradne zo skla, ktoré zaručujú priamy výhľad na vodu. V ďalšej budove sú rodinné spálne a kúpeľne celé z betónu. Na vidieku je dom zateplený dreveným fasádnym obkladom.
Exkluzívny dizajnový betónový bungalov priamo pri mori

Jednotlivé oblasti sú prepojené úzkou terasou s drevenými doskami, ktoré ponúkajú nádherný výhľad na prímorskú krajinu. Na strechu sa dostanete po schodisku a môžete ju použiť ako strešnú terasu, ktorá ponúka fantastický výhľad na more zhora.
Betónový bungalov opláštený drevom zvonku – strešná terasa

Mimoriadny súkromný rekreačný dom je postavený veľmi robustne z pozinkovanej ocele a betónu. Drevo zvonku aj zvnútra zaisťuje rozumnú izoláciu. Zasklenie umožňuje bezprostrednú blízkosť prírody.
Betónový bungalov s ochranou proti slnku zvonku – cez drevené lamely

Betónový bungalov visí v skale pri mori

Úzka terasa s drevenými podlahovými doskami priamo nad vodou

Panoramatické okná umožňujú okamžitý výhľad na more

Útulné posedenie priamo nad hladinou vody

Ochrana súkromia súkromných izieb zvonku prostredníctvom „vzdušných“ fasádnych obkladov z dreva

Minimalistická betónová kúpeľňa so sklenenou stenou pre sprchovací kút

Plán a poloha prázdninového domu na pobreží

Bočný pohľad – prázdninový dom od Lund Hagem Architects

* Projekt Cabin Lille Arøya od Lund Hagem Architekti
