Návrh malého bytu z USA
Navrhol Haiko Cornelissen Architecten

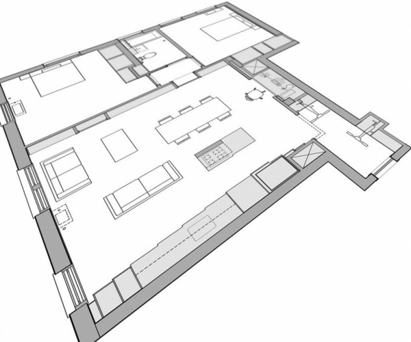
Byt sa volá Wall-All a nachádza sa v meste Queens, New York, USA. Navrhol ho architekt Studio Haiko Cornelissen Architecten, ktorý má kancelárie v New Yorku a Amsterdame. Malé Dizajn bytu ponúka absolútne maximum funkčnosti v rámci malého obytného priestoru. Koncepciou projektu je prerobiť miestnosti tak, aby bol vytvorený väčší priestor pre najčastejšie používané oblasti, byt
Moderný dizajn bytu z New Yorku

Byt pozostáva z troch samostatných izieb – otvoreného obývacieho priestoru a dvoch spální. Vďaka inovatívnym Dizajn bytu obývačka sa zväčšila a prevzala funkcie kuchyne, skrinky a knižnice. Skrinka je skrytá za posuvnou stenou a police na knihy sú pripevnené k ďalšej stene. Kuchyňa je malá a kompaktná s množstvom skrytých skriniek. Podľa toho sú navrhnuté aj spálne a spoločná kúpeľňa. Mnoho vstavaných skríň ponúka viac priestoru a umožňuje, aby si minimalistický dizajn interiéru prišiel na svoje.
Vzrušujúci dizajn bytu

Dizajnéri sa rozhodli pre neutrálnu farebnú schému. Obývacia izba má biely strop a steny s čiernymi prvkami a čiernu podlahu. Zasadený jedálenský stôl a farebné knihy dodávajú moderný a zaujímavý vzhľad. Spálne a kúpeľne sú maximálne minimalistické, vymaľované v bielej farbe a tiež s čiernymi podlahami. Na rozdiel od toho je kúpeľňa úplne navrhnutá vo svetlých farbách. Niektoré kovové povrchy kontrastujú s bielymi dlaždicami. Dizajn bytu vyzerá moderne a ponúka dostatok priestoru na to, aby sa obyvatelia cítili príjemne.
Od K.H. Christovej
biela vybavená kuchyňa v modernom malom byte

moderný interiér – biela spálňa


elegantná kúpeľňa s bielymi dlaždicami

moderný malý byt – plán

