Úzky dom so skvelým dizajnom – rekonštrukcia s terasou a spálňou

V dnešnom príspevku vám poskytneme príklad praktického rozloženia miestnosti, ktoré optimálne funguje pre úzky dom v Austrálii. Prestavaná budova má terasu a spálňu v centre mesta Fitzroy v Melbourne. Celková plocha bytu je skromných 79 metrov štvorcových. Táto oblasť je tiež domovom hustej zmesi robotníckych domov a malých terás. Všetky sú skromné veľkosti, mnohé sú tmavé a studené. Väčšina z nich je v pôvodnom stave s jednoduchou fasádou, ktorá vo dvore ukrýva zhluk tehál a poveternostných tyčí..
Tieto budovy vytvárajú sieť podrobných a rôznych objemov, ktoré sú v ostrom kontraste s jednoduchosťou pouličného priečelia. V tejto súvislosti je potrebné pri stavbe na zadnej strane nehnuteľnosti venovať pozornosť malosti a štruktúre vzhľadom na jazdný pruh existujúcej postavenej formy. V tejto súvislosti je ťarchou projektanta reagovať na montáž malých množstiev pri maximalizácii možností vlastníkov..
Správne prostredie pre úzky dom

Keď bol Fitzroy gentrifikovaný, architekti videli, že obnova prebieha nesympatickým spôsobom. Existuje mnoho príkladov tejto zbierky tmavých tehál a poveternostných tyčí, ktoré sú nahradené veľkými súčasnými predmetmi, ktoré dominujú v ich kontexte. Taktikou na ulici Moor Street bolo maximalizovať vnútorné funkcie a dostupný priestor a zároveň reagovať na kontext. Architekti tak namiesto jedného súčasného monolitu vytvorili jednu budovu z troch malých predmetov.
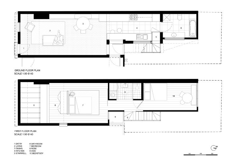
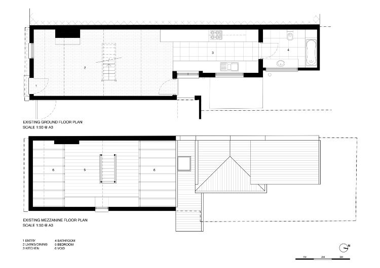
Pôvodne bol na pozemku rovnako úzky dom, ale bol tmavý, chladný a stiesnený. Bývalú obývaciu izbu rozdelil na polovicu rebrík a jediná spálňa bola na medziposchodí. Úlohou bolo vytvoriť funkčný úzky dvojizbový dom s rozpočtom. Priestorové obmedzenia, ľahké a moderné, progresívne výhľady viedli k redizajnu.
Prerobený úzky dom stanovuje nové štandardy

Keďže bol k dispozícii obmedzený priestor, tesné priestory boli bonusom, ktorý by tím mal dobre využiť. Z prízemia neexistoval žiadny dôkaz, ktorý by zachoval integritu tejto skromnej tehlovej architektúry. Pri bližšom skúmaní si môžeme všimnúť štyri kroky na kuchynskom okne. Tie tvoria zaujímavú úroveň a proces objavovania.

Otvor, ktorý vyzerá ako kuchynská skrinka, tiež umožňuje prístup na svetlo zaplavené schodisko a druhé poschodie. Pozostáva z hlavnej spálne, šatne, kúpeľne a druhej spálne, ktorú je možné využiť aj ako pracovňu.

Schodisko ladí s celkovým dizajnom ako externý prvok a slúži ako zariadenie na filtrovanie denného svetla stredom budovy. V stavebnom projekte pre taký úzky dom boli úspešnou voľbou perforované panely z udržateľného materiálu. Tieto chránia byt z východu a vytvárajú škvrnité svetlo, ktoré preteká po schodisku a dovnútra. Svetlé farby sa menia podľa toho, ako sa mení denné svetlo počas ročných období.

Výhľad na susedný kostol a jeho ikonické prvky rámujú presne umiestnené okná a strešné okná v celom byte. To vytvára vrstvený pocit konektivity.

Vonkajšia krajina inšpirovala architektonické návrhy na vytvorenie nových priestorov prostredníctvom zosúladenia konkrétnych uhlov pohľadu. Ovládateľné zasklenie tiež poskytuje prirodzené osvetlenie a priečne vetranie, zatiaľ čo šikmé objemy zachytávajú nádhernú, neustále sa meniacu kvalitu svetla.

Navonok skladaná východná fasáda kopíruje anjelské krídlo, ktoré predovšetkým chráni budovu pod ňou – pocta inšpirácii kostola. Takýto stavebný prvok tiež artikuluje výšku a zároveň poskytuje lepšie súkromie úzkemu domu.












