Tento čiastočne podzemný dom má medenú strechu v tvare lievika

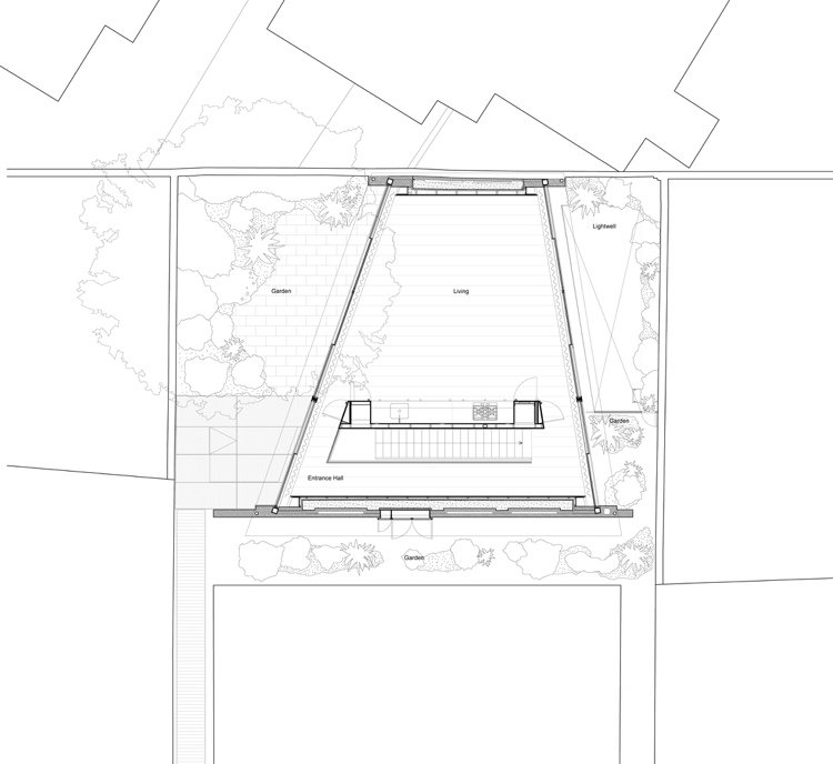
Medená strecha v tvare lieviku a podzemný bazén sú hlavnými bodmi tejto fascinujúcej obytnej budovy v západnom Londýne. Budova stojí za tehlovým radovým domom zo štyridsiatych rokov 19. storočia v bohatej londýnskej štvrti Notting Hill. Vďaka svojej polohe bol projekt Gianni Botsford Architects výstižne označovaný ako „dom v záhrade“.
Čiastočne podzemný dom s lievikovou strechou v tvare lievika

Architekt Gianni Botsford býval na najvyššom poschodí mestského domu s výhľadom na bezcharakterný bungalov, ktorý stál za nehnuteľnosťou od roku 2003. Preto chcel oblasť lepšie využiť. Počas osemročného procesu plánovania a stavby Botsford a jeho tím bungalov rozobrali a nahradili ho čiastočne podzemným domom s neobvyklou medenou strechou v tvare lievika..

Svetlík v streche domu zaisťuje rovnomerné osvetlenie interiéru. Prostredníctvom svetla a tieňa vytvára stanový tvar strechy nové miesto pohody. Ako prírodný materiál získavaný zo zeme sa meď hodí aj k myšlienke, že veľká časť domu je postavená pod zemou.

Predtým, ako bola strecha prinesená do záhrady, bola v Dolomitoch montovaná. Jeho štruktúra, ktorá je vyrobená z lepeného vrstveného dreva, je odhalená na spodnej strane a tvorí dekoratívny strop v presklenej obývacej a jedálenskej časti. Táto izba má tiež kuchyňu so skriňami, krytmi proti striekajúcej vode a všetkým medeným príslušenstvom.

Priame drevené schody vedú dole do hlavnej spálne. Tu architekt vytvoril zelenú vnútornú záhradu, aby zabránila tomu, aby miestnosti orientované na sever pôsobili temne a špinavo. Do strechy svetelnej šachty bolo integrované ďalšie strešné okno, ktoré osvetľovalo 10-metrový plavecký bazén pod ním.
Svetlík v medenej streche zaisťuje dostatok prirodzeného svetla vo vnútri

Vedľa bazéna je to, čo architekti nazývajú priestorom na sedenie v galérii. V strede miestnosti je obrovská pohovka, ktorá vás pozýva na leňošenie. Veľká časť povrchov tu bola obložená drážkovanými panelmi zo sivého kararského mramoru alebo douglasky, aby interiér získal „zmyselnú kvalitu“.























Architekt: Gianni Botsford Architects (Gianni Botsford, Paulo Martinho, Kate Darby, James Eagle, Hiroshi Takeyama, Anahi Copponex)
Fotograf: Edmund Sumner
