Súkromná mestská vila so záhradou v Tel Avive kombinuje staré a nové

Rok 2013 z Paz Gersh Architects Postavená súkromná mestská vila s názvom „V“ kombinuje prvky moderného stredomorského rekreačného domu s historicky zachovaným murivom. Táto nehnuteľnosť sa nachádza v zachovaných historických štvrtiach Tel Avivu v Izraeli a má malú, ale krásnu záhradu.
Súkromná mestská vila zaručuje fascináciu

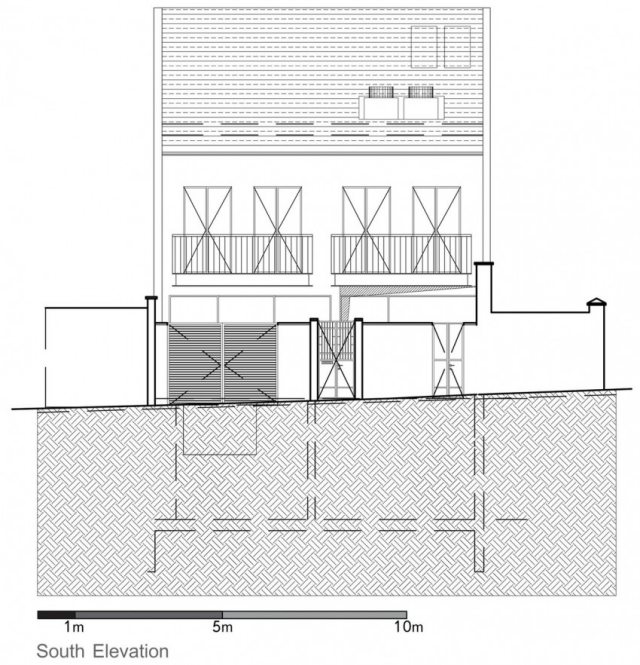
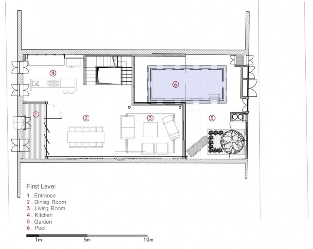
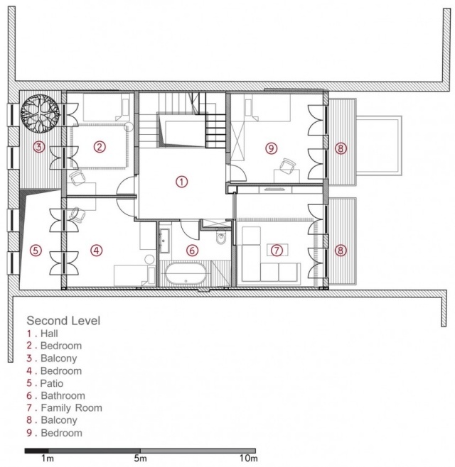
Pri stavbe mestskej vily boli použité vysoko kvalitné materiály a vybavenie. Vznikla tak živá zmes moderných interiérov s tradičnými prvkami, ako sú drevené podlahy a kamenné múry, ktoré boli integrované do interiéru. Celková obytná plocha je 350m2 a je rozdelená na 2 podlažia s balkónmi, vysadené pôvodnými druhmi rastlín. Na prízemí sa nachádza priestranný obývací a jedálenský priestor s nadväzujúcou otvorenou kuchyňou a priamym vstupom do záhrady a na nádvorie. Spálne a hygienické miestnosti sú na hornom poschodí.
„V“ dom s vnútornou záhradou

Kombinácia súčasnej a tradičnej stredomorskej architektúry ponúka špeciálny životný zážitok. Ponorení do zelene a ticha stredomorskej krajiny môžete relaxovať v chladnej oblasti na dvore bez toho, aby ste museli myslieť na svojich susedov. Vysoké múry odvracajú zvedavé pohľady. Vonkajší bazén odráža slnečné svetlo a poskytuje upokojujúce útočisko pred stresom každodenného mestského života. Malá terasa v nádvorí sa používa ako vonkajšie foyer alebo malá záhrada pre hostí a umožňuje zlúčenie formálnej hranice medzi vnútorným a vonkajším priestorom..
Idylický dom s bazénom

Obrázky: Amit Giron & Povedzme, Sikolsky
Nová mestská vila „V“ House – pohľad do interiéru budovy

Interiérový dizajn sa vyznačuje eklektickou zmesou jemných a drsných textúr. V oblasti varenia prináša kombinácia dreva a nehrdzavejúcej ocele domáce teplo. Ruské jedálenské a konferenčné stolíky dodávajú pôvabný vidiecky dom.
Súčasný mestský dom s teplým interiérom

Obývačky s konceptom otvoreného priestoru

V obývačke je zaujímavá zmes nábytku

Kamenná stena integrovaná do moderného interiéru

Kamenné tehly dodávajú miestnosti štruktúru










