Súčasný plus energetický dom Annen od architektov Steina Hemmesa Wirtza

Ten moderný Plus energetický dom Annen sa nachádza v novej rozvojovej oblasti vo Farschweileri na okraji vysokého lesa. Cieľom klienta bolo vytvoriť súčasnú estetiku pri dodržaní zásad udržateľnosti. Kompaktný dizajn, postavený z pohľadového betónu a dreva na svahu, spĺňa najvyššie štandardy ochrany životného prostredia a stavebnej biológie.
Revolučný plus energetický dom postavený vo svahu

Nehnuteľnosť je na severnom svahu s krásnym výhľadom na les. To Plus energetický dom je budova, ktorá generuje viac energie, ako spotrebujú jej užívatelia. Annen má úsporu energie približne 75% v porovnaní s „normálnym“ pasívnym domom.
Dvojpodlažný dom s krásnym výhľadom na les

Dom má udržateľnú technológiu pasívneho domu – veľmi dobrú tepelnú izoláciu, trojsklo, riadené vetranie so spätným získavaním tepla. Južne orientovaná strešná plocha je vybavená fotovoltaickým systémom a tepelným solárnym systémom.
Pasívny dom orientovaný na budúcnosť vo Farschweileri

Projekt z roku 2011 by mal prispieť k ekologickému a ekonomickému rozvoju a ochrane zdrojov. Jeho cieľom bolo dosiahnuť, aby bola domácnosť menej ovplyvnená negatívnymi účinkami globalizácie.
Rodinný dom so sedlovou strechou

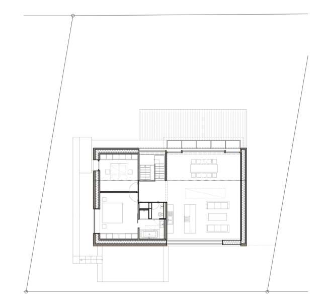
Dizajn a architektúra interiéru sú v súlade s požiadavkami nových technológií. Dvojpodlažný dom ponúka celkom 317 metrov štvorcových obytnej plochy v dvoch úrovniach. Na poschodí je hlavný obývací a jedálenský priestor v otvorenom priestore. Suterén je postavený z pohľadového betónu na jednej strane v podlahe. Horné poschodie so strechou je vyrobené z udržateľnej drevenej konštrukcie.
Dom s veľmi nízkymi energetickými požiadavkami

Železobetónová konštrukcia opláštená drevom

Purizmus v kuchyni – obyčajné biele fronty

Interiér pasívneho domu – charakterizované drevom, sklom a betónom

Vonkajšia fasáda z dubu

Súčasný dom so solárnymi panelmi na výrobu elektriny

Energetický dom Farschweiler Architekti Stein + Hemmes Wirtz

Štítová strecha s veľmi plochým sklonom

Plus energetický dom – výhľady a pôdorys




Autor fotografií: Eibe Sönnecken
