Pavilón – trendy dizajnu a architektúry z Afriky

Západný útes pavilón v juhoafrickom Johannesburgu očarí originalitou, jednoduchosťou a čistou eleganciou. Koncepciu ultramoderného a zároveň tichého bytu uprostred krásneho prírodného prostredia vymyslel a implementoval kreatívny dizajnérsky tím z Gass Architektur Studio.
Westcliff Pavilion – inovatívny projekt sledujúci tendencie šetrné k životnému prostrediu

Konštrukcia je taká jednoduchá, ale zároveň úplne komentárska a moderná. Oceľové rámy objímajú pavilón efektným osvetlením akcentuje otvorený pôdorys domu.
Westcliff Pavilion – ideálny dovolenkový dom

Západný útes pavilón pre niektorých ľudí je nielen perfektný prázdninový podnájom, kde strávi dovolenku alebo rodinnú akciu, ale dokonca aj vysnívaný domov. Malebná africká krajina obklopujúca pavilón ponúka rozprávkový pokoj a relaxáciu. Pri návrhu interiéru použili návrhári predovšetkým nábytok z masívu a drevené kryty. Drevo dodáva miestnosti útulnosť, teplo a pohodlie a nikdy nevyjde z módy. Umelecké spojenie viacerých materiálov – teaku, tehly, kameňa a skla pripomína koncept budovy šetrný k životnému prostrediu.
Elegantný dizajn nábytku a elegantné zariadenie v pavilóne Westcliff

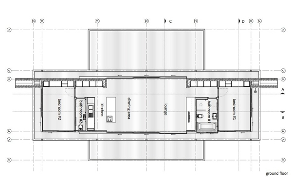
Westcliff s úchvatnou fasádou, veľkými oknami a posuvnými sklenenými dverami pavilón z Štúdio plynovej architektúry byť považovaný za jeden z najlepších príkladov súčasnej architektúry. Jedná sa o dvojlôžkový apartmán s dostatočným priestorom, klasickým dizajnom nábytku a ekonomickou výzdobou. Aj keď je celý interiér vďaka preskleným stenám vystavený vonkajšiemu svetu, súkromie chráni útulné zariadenie. Romantickú atmosféru v spálni zvýrazňujú jemné závesy, ktoré zaručujú ten najlepší relax.
minimalistická kuchyňa – Lodgia

Drevený nábytok, jednoduché police a stropné osvetlenie

Pohľad na dom zvonku

Elegantná spálňa so závesmi – sklenené steny

Wesrcliffov pavilón – uprostred lesa

Plán Westcliff Pavilion

