Moderný dom v Španielsku – priestranné izby a vysoké stropy

Óscar Pedrós jeden vytvoril moderná obytná budova podľa objednávky zákazníka v roku 2009. Dom EINS sa nachádza v meste O Valiño, Oleiros, A Coruña, Španielsko a má vysoké stropy, veľa prirodzeného svetla a jedinečný krb..
Moderný dom v Španielsku

Všetky miestnosti sa točia okolo veľkého krbu. Práve tepelná zotrvačnosť dostatočne vykuruje obývaciu izbu s vysokými stropmi. Prvý staviteľ povedal: „Panebože, zdvojnásobte výšku miestnosti! … Škoda priestoru “, keď miešal betón pre kachle. Tento prvok sa ukazuje ako najdôležitejšia vec v celom dome. Tiež to vytvorilo pocit slobody.
Moderný dom s dvojnásobnou výškou miestnosti

Posuvné sklenené dvere a okná tento pocit slobody ešte umocňujú, zatiaľ čo malé štrkové kamene okolo nosných stĺpov a v záhrade vás vrátia na Zem. Veľmi zaujímavý je aj dizajn schodiska. Prvé štyri kroky potom vytvoria dlhý stôl, kam môžete dať rôzne dekorácie a kvetináče. Potom dizajn pokračuje plávajúcimi schodmi.

Sklenené steny prepúšťajú denné svetlo do domu

zaujímavý dizajn schodiska do druhého poschodia

Drevené prvky v interiéri – plávajúce schody a jedálenský stôl

Zapustené svetlá vytvárajú magické efekty

Pohľad zvonku


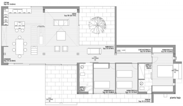
Stavebné plány a náčrty

Moderná obytná budova v Tokiu s minimalistickým nábytkom v bielej farbe
