Moderné architektonické riešenia z Brazílie – Lee House od Studio MK27

Súčasný dizajn Studio MK27 je vynikajúcim príkladom príťažlivých a moderná architektúra z Brazílie. Lee Haus sa nachádza v Porto Feliz, São Paulo, Brazília a vyznačuje sa jasným pôdorysom. Vďaka úspešnému prepojeniu interiéru a exteriéru a zabudovaniu budovy do okolia tím architektov nenecháva nič žiaduce.
Moderná architektúra znamená udržateľnosť

Studio MK27 ponúka svojim zákazníkom moderná architektúra Riešenia, ktoré vykresľujú obraz pasívneho životného štýlu v blízkosti prírody. Lee Haus tiež znamená udržateľný spôsob života. Fasádny obklad z dreva ideálne podporuje minimalistický vzhľad domu na vizuálnej úrovni.
Pojmy modernej architektúry posilňujú spojenie s prírodou

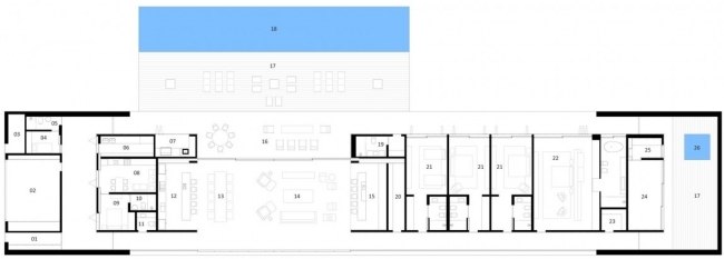
Lee House je plánovaný ako jednopodlažný stavebný objem, ktorý pozostáva z boxu, ktorý sa otvára široko von a 2 uzavretých boxov. Spojenie s vonkajším priestorom je vo všetkých miestnostiach výrazne zdôraznené. Podkrovná obývacia izba sa otvára do záhrady bezrámovým zasklením od podlahy až k stropu. Ak sú posuvné sklenené prvky otvorené, miestnosť vyzerá ako zastrešená vonkajšia obývačka alebo útulná veranda. Vzhľadom na vysoké teploty takmer po celý rok musia architekti všetko moderná architektúra Prispôsobte koncepty podnebiu.
Dom Lee je pasívne chladený

Interiér budovy je veľmi priestranný a jednoduchý. Kombinácia textúr dodáva miestnosti vizuálnu všestrannosť, pokiaľ ide o farby, tvar a štruktúru. Vysoko kvalitné materiály a prvotriedny nábytok predstavujú neutrálnu prírodnú krásu a zaručujú dokonalý komfort bývania. Drevo je doplnené bielou maltou. Pokojné štruktúry vytvárajú čistú, takmer minimalistickú atmosféru, doplnenú teplom a bezpečím.
minimalistické a moderné prostredie

Obývacia izba má priamy prístup k bazénu a priečne vetranie. Tým sa efektívne zníži teplota okolia a miestnosť sa pasívne ochladí. Drevené panely z muxarabisu, ktorými sú čelá obložené, efektívne filtrujú slnečné lúče. K dispozícii je moderná otvorená kuchyňa, wellness centrum, sauna a kryté fitnescentrum. Centrom podkrovného priestoru je však exkluzívny bar, kde majitelia môžu večer ukončiť s priateľmi. Široké patio vytvára pôsobivú atmosféru pod holým nebom a dotvára idylu.
Fotografie: FG + SG Fotografia die Arquitectura
minimalistický dom splýva s okolitou prírodou

Štúdio MK27 predstavuje Lee House

Jednopodlažná rezidencia s bazénom
Moderná architektúra v Brazílii podporuje život v blízkosti prírody

Stena z prírodného kameňa ako ochrana súkromia a vetra v záhrade

Prírodné materiály pre teplú atmosféru

Otvorený priestor je podľa toho osvetlený

Vonkajší jedálenský stôl z masívu

Tradičné vzory obohacujú atmosféru












