Dvojdom na jednej strane spojený s asymetrickým dizajnom fasády

Tento príklad pre Dvojdom postavený na jednej strane s asymetrickým fasádnym dizajnom sa nachádza v meste Pozuelo, Španielsko. Dom navrhol architektonický ateliér Nodo 17 Architects s hlavným architektom Manuelom Pérezom Romerom. Budova má rozlohu 820 metrov štvorcových a bola dokončená v roku 2012.
Dvojdom na jednej strane spojený s asymetrickou dispozíciou bytu

Taký Dvojdom spojený s jednou stranou má spravidla jasné a symetrické rozdelenie obytných oblastí. Napriek tomu bol tento odvážny projekt navrhnutý tak, aby pojal šesť bytov rôznych veľkostí. Interiérový dizajn domu odráža asymetrickú vonkajšiu konštrukciu a predstavuje veľmi inovatívny spôsob kreatívneho navrhovania interiéru.
Dvojdom na jednej strane spojený s univerzálnou fasádnou konštrukciou a jasne definovanými obytnými priestormi

Tento príklad pre a Dvojdom spojený s jednou stranou sa výrazne líši asymetrickým dizajnom exteriéru. Namiesto stavby dvojdomu s dvoma podobnými konštrukciami sa architekti rozhodli pre inovatívny a zaujímavejší variant. Dizajnéri zostavili jednotku prvkov rôznych veľkostí a tvarov. Každý byt má svoj vlastný jedinečný dizajn, ktorý je vidieť aj na fasáde. Budova zvonku bola zostavená z rôznych fragmentov, ale sú navzájom veľmi dobre zladené. Každý byt bol postavený z rôznych materiálov a tieto kontrasty je možné vidieť na vnútornom aj vonkajšom dizajne.
Schodisko spája jednotlivé poschodia

Bazén na nádvorí

minimalistický dizajn vo vnútri domu

Podlahový obklad z dreva

Schodisko so skleneným zábradlím

V určitých oblastiach sa používala tehla

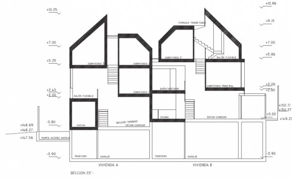
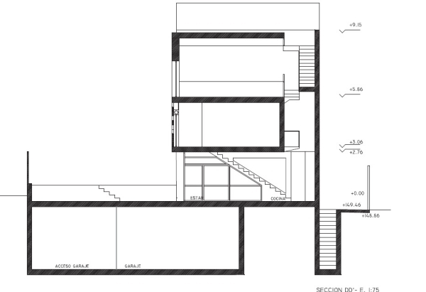
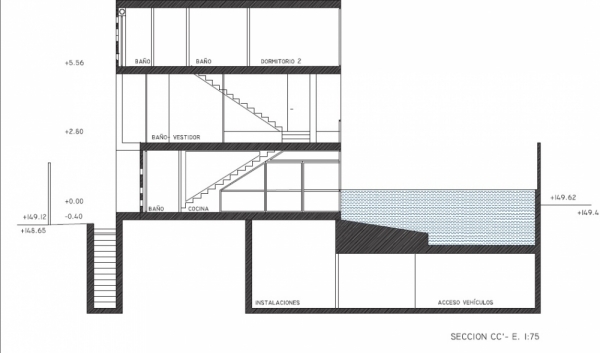
Prierez domu

Pôdorys domu

Fotografie Pablo Cruz Arjona
