CorManca – budúci slnečný dom so zelenou strechou v Mexico City

CorManca Solárny dom sa nachádza v metropole Mexico City a ponúka pohodlný a zároveň alternatívny životný štýl. Udržateľný rezidenčný projekt z rokov 2012-2013 bol navrhnutý architektonickým štúdiom Paul Cremoux a postavený podľa pasívneho štandardu na pozemku s rozlohou iba 176 m2..
Asymetrický solárny dom od štúdia Paul Cremoux

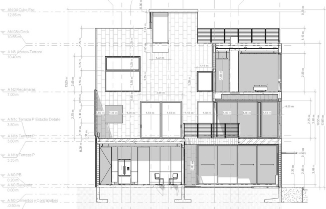
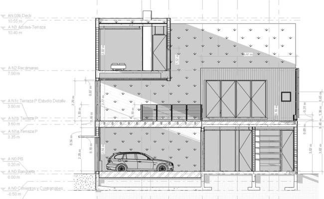
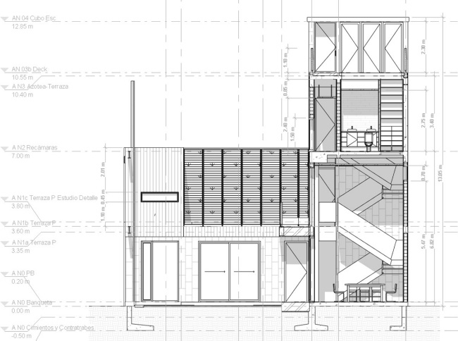
Trojposchodový Solárny dom má nielen solárny ohrievač vody, ale je aj pasívne chladený krížovou ventiláciou. Vertikálna zelená oáza na vnútornom nádvorí je absolútnym vrcholom. Na tejto stene bolo vysadených viac ako 4 000 rôznych druhov rastlín. Zelená strecha chráni dom pred poveternostnými vplyvmi.
Solárny dom CorManca – moderné mestské sídlo

Vertikálna zeleň každoročne absorbuje okolo 187 kg CO2 z atmosféry. Spolu so zelenou strechou je to 267 kg CO2. To Solárny dom Projekt kládol veľký dôraz na používanie ľahko recyklovateľných materiálov, na používanie náterových systémov bez VOC, na pasívne chladenie krížovou ventiláciou.
Dom Štúdio Paul Cremoux s vertikálnou zeleňou

Okná a fasády sa zameriavajú na transparentnosť, ľahkosť a stabilitu. Základnou funkciou skla je vnášať do domu denné svetlo. Fasádny obklad z panelov z tmavého prírodného kameňa pôsobí dojmom ťažkého monolitického betónového telesa. Tieto panely nájdete aj v interiéri ako šikovné akcenty s ich typickou textúrou povrchu, na základe ktorých možno vytvárať dramatické kontrasty. Obytná plocha je 540m2.
Fotografie: Héctor armanadoherrera a PCW
Teplé bukové drevo dodáva miestnosti pocit vizuálnej ľahkosti

Druhá obytná úroveň slúžila ako záhradná časť

Energeticky úsporný dom – raj malých rastlín

Moderný pasívny dom so zelenou strechou

Udržateľný betónový dom

Dom s nulovou energiou CorManca – pohľad do interiéru

Trojpodlažný dom – interiérový obklad z bukového dreva

Drevené schody a sklenené zábradlie

Udržateľný projekt s podlahami v tvare U

Casa CorManca – Betónový dom s kovovou konštrukciou

Solárny dom s fasádou z prírodného kameňa

Stavba šetrná k životnému prostrediu



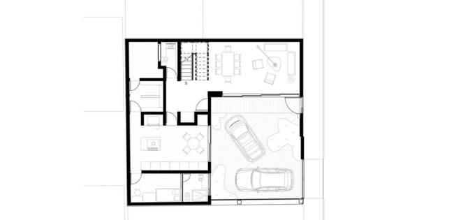
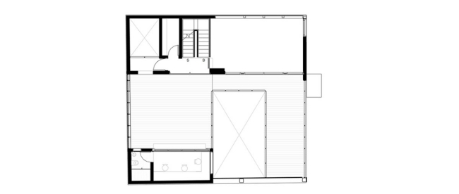
Dispozícia miestnosti – plán



