Bioklimatická architektúra pre efektívnu úsporu energie

Bioklimatická architektúra zaisťuje úsporu energie. Prirodzené slnečné svetlo sa na vykurovanie domu využíva pomocou moderných slnečných a okenných systémov. V zásade sa tu používajú iba znalosti o účinnom využívaní slnečného svetla, ktoré sú nám známe už tisíce rokov.
Bioklimatická architektúra do obývačky

Ako už bolo spomenuté, bioklimatická architektúra slúži na efektívnu úsporu energie slnečným žiarením, ale aj prírodnými prúdmi vzduchu. Úlohou architekta je nájsť riešenie, ako navrhnúť skutočne nepriepustnú vonkajšiu stenu domu tak, aby sa stala užitočným spôsobom priepustná. Ako si už asi viete predstaviť, je to dosiahnuté použitím okien s vysokokvalitnými okennými rámami.
Bioklimatická architektúra – využívajúca slnečné svetlo a teplo

Ako je známe, slnečné svetlo samo o sebe má pozitívny vplyv na organizmus. Nedostatok slnečného svetla alebo nadmerné množstvo umelého svetla môže dokonca viesť k depresii, a to z jednoduchého dôvodu, pretože má iba obmedzenú škálu farieb. Ale okrem týchto dôležitých zdravotných výhod, ktoré so sebou slnečné svetlo prináša, môže slúžiť aj ako zdroj energie a tepla, najmä v zime ako súčasť bioklimatickej architektúry, ktorá je navyše bezplatná. Aby sa ušetrila energia slnečným žiarením, nie sú dôležité len samotné okná, ale aj to, aby boli správne rozmiestnené na fasáde alebo stene domu. Dôležitú úlohu samozrejme zohráva aj veľkosť okna. To však tiež znamená, že v lete musí byť zabezpečená vhodná ochrana pred slnkom. V opačnom prípade sa miestnosti prehrievajú. Praktické pre bioklimatickú architektúru sú markízy, rolety, ale aj žalúzie a vonkajšie rolety. Baldachýn je tiež vynikajúcou možnosťou, pretože slnečné svetlo môže v zime preniknúť do miestnosti, keď je slnko nižšie, a v lete je chránené.
Bio-klimatická architektúra s okenicami na leto

To všetko si vyžaduje vhodnú bioklimatickú architektúru. Ak sa všetko neberie do úvahy, zbytočné (alebo v tomto prípade nevyhnutné) energetické zariadenia sa jednoducho znova použijú, čo pohltilo veľa peňazí, či už na vykurovanie alebo chladenie miestností.
Vyberte si architektúru podľa množstva slnečného svetla

Bioklimatická architektúra – prirodzené vetranie prostredníctvom automatických okien

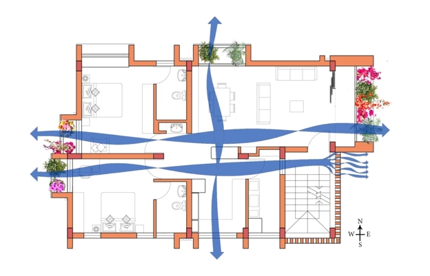
Prirodzenú ventiláciu je možné efektívne využiť prostredníctvom bioklimatickej architektúry na chladenie miestností v lete. Okrem výmeny starého a čerstvého vzduchu je to jedna z výhod, ktoré so sebou okná prinášajú najmä v lete. Chladenie sa dosiahne nočným otvorením okna. Pretože je teplota vzduchu vonku počas tejto doby nižšia ako vo vnútri, je dosiahnuté príjemné chladenie. Tento variant je možné použiť aj vo verejných budovách (napríklad v administratívnych budovách), kde sa inak na klimatizáciu spotrebuje veľa energie.
Myšlienka bioklimatickej architektúry s prirodzeným vetraním

Na tento účel sa ponúka bioklimatická architektúra vo forme praktických okien, ktoré sa v noci automaticky otvárajú. Ráno sa automaticky zatvárajú, hneď ako vonkajšia teplota stúpne nad teplotu vnútri budovy. S týmito typmi možností úspory energie môžete znížiť náklady až o 50%. Mimochodom, existujú aj automatické okná, ktoré riadia kvalitu vzduchu. Sú výhodné, pretože vo väčšine prípadov si ľudia včas nevšimnú, že je potrebné vetranie. Pri tomto variante okna pre bioklimatickú architektúru sú rozhodujúce obsah CO2 a vlhkosť.
Zabezpečte vetranie pomocou bioklimatickej architektúry

Celkovo by ste mali vedieť, že automatizácia okien pre bioklimatickú architektúru je praktická a efektívna vec a nie je nijako komplikovaná. Je to investícia, ktorá sa rozhodne oplatí. Z tohto dôvodu by sa mal určite použiť. Navyše týmto spôsobom nielen ušetríte peniaze, ale tiež zvýšite pohodlie bez ohľadu na to, o aký typ budovy ide.
Bioklimatický návrh domu

Bioklimatická architektúra s baldachýnom vhodná na leto i zimu



