Moderná architektúra s domom Tula od Patkau Architects

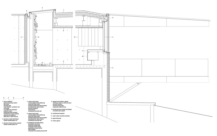
Dom Tula z Architekti Patkau, ten pôsobivý, moderná architektúra vlastní, stojí na útese v Tichom oceáne 30 metrov nad zemou v Britskej Kolumbii. Má mnoho veľkých panoramatických okien, ktoré ponúkajú úchvatný výhľad na oceán. Betónové múry, z ktorých je dom predovšetkým vyrobený, majú pripomínať zalesnené a skalnaté okolie. Okrem toho má dom aj strechu z machu, ktorá by mala byť tiež spojená s prírodou. Tiež je zaujímavý spôsob, akým prúdi podzemná voda pre moderná architektúra sa používa. Preteká za bokom domu, medzitým je zachytený v rybníku na vnútornom nádvorí domu.
Moderná architektúra vo výške 13 metrov na útese nad plážou

Betónové steny sú na niektorých miestach obložené čierno -vláknobetónovými cementovými panelmi, ktoré vytvárajú jednotlivé miestnosti. the moderná architektúra Samotné miestnosti ponúkajú vzhľadom na existujúce prostredie rôzne efekty. Z kuchyne je vidieť na rybník alebo v spálni je skala pokrytá machom. Na druhej strane listnaté stromy možno pozorovať zo zadného dvora. Obývacia izba je však obzvlášť pôsobivá. Steny sú vyrobené zo sklenených tabúľ, ktoré siahajú od podlahy po strop. Prostredníctvom tohto moderná architektúra Sklenená obývacia izba ponúka úchvatný výhľad na Tichý oceán a množstvo ostrovov.
Moderná architektúra s výhľadom na more

Z obývačky a terasy je nádherný výhľad na Pacifik
V podlahe oblasti domu, ktorá je nad útesom, sú okenné otvory, ktoré ponúkajú výhľad na pláž pod ním a opäť objasňujú, v akej výške sa dom nachádza..

Okno predné do obývačky a otvory v podlahe

Z vnútornej strany je vidieť nádvorie, ktoré je v strede domu

Podzemná voda sa krátko zhromažďuje v rybníku a potom pokračuje v toku

Terasa má sklenené zábradlie

Panoramatický výhľad na oceán je zaručený veľkými oknami od podlahy až k stropu



