Moderný pavilón zhromažďuje umelcov v centre Dubaja

Ten moderný pavilón je produktom modernej architektúry a nachádza sa v centre Dubaja. Projekt bol navrhnutý a realizovaný dizajnérskym štúdiom Mohsina Jawaheriho a ponúka priestor na diskusie a stretnutia medzi národnými a medzinárodnými umelcami..
Moderný pavilón s dreveným nábytkom

Z pavilón sa nachádza na praktickom mieste, kde si môžu rôzni umelci sadnúť. Je to bezplatná zóna pre všetkých, ktorí majú radi umenie a ktorí sa chcú inšpirovať alebo sa chcú len zoznámiť s novými kreatívnymi ľuďmi. To všetko sa splnilo vďaka modernej architektúre.
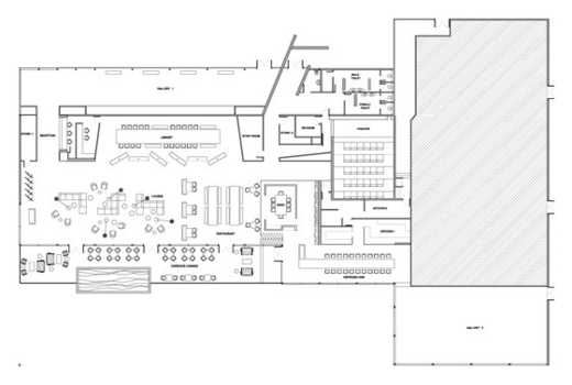
Rozvody multifunkčných miestností v pavilóne

Z pavilón poskytuje umelcom a návštevníkom knižnicu, reštauráciu, salón, kaviareň a kino, aby sa cítili príjemne. Táto multifunkčná distribúcia miestnosti je veľkým úspechom a predstavuje iba časť možností, ktoré z tejto stavebnej metódy vyplývajú. Priestranná otvorená hlavná plocha je zaliata svetlom. Na jednom konci miestnosti je pootvorený dom, za ktorým sa nachádza záhrada. Farby, textúry – všetko vyzerá vzhľadom na zelené pozadie vzrušujúcejšie a originálnejšie. Minimalistické detaily je vidieť najmä na vysokom strope.
Dizajn pavilónu kombinuje funkčnosť a estetiku

Veľké stoly pavilón vás pozýva na dialóg a prispeje k vytvoreniu komunity a pomôže vytvoriť nádhernú atmosféru. Nábytok je špeciálne navrhnutý tak, aby bolo možné jednotlivé oblasti tematicky rozdeliť a zároveň vytvárať pocit, že miestnosť je väčšia. Reštaurácie na Blízkom východe sú tradične navrhnuté tak, aby boli otvorené a prístupné čo najväčšiemu počtu ľudí. Vytvárajú špecifickú náladu a robia prostredie dynamickým a vzrušujúcim. Ďalší dôvod, aby návštevníci mohli oceniť návrhársky nápad a vrátiť sa k nemu pavilón vrátiť sa.
B. Angelov
Praktický interiér knižničného výtvarného spolku

Praktická knižnica

Stavebný plán-Združenie moderných výtvarníkov

