Moderný montovaný dom pre flexibilný životný štýl
Ekologický stavebný systém od Djuric Tardio Architects

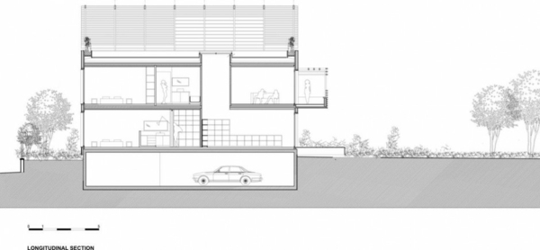
Tento ekologický moderný Montovaný dom je vynikajúcim príkladom modernej architektúry. Nachádza sa v tichej zelenej štvrti. Konštrukcia je veľmi podobná susedným domom, ale stále existujú určité podstatné rozdiely oproti tradičnej architektúre v tejto oblasti. Napríklad konštrukcia budovy je prekvapivo otvorenejšia – ochranná strecha nad terasou poskytuje deťom bezpečné ihrisko.
Montovaný dom s funkčnou konštrukciou

Mestský dom nemôže byť otvorenejší ako tento Montovaný dom – Je známych veľa príkladov, ktoré kladú minimálne bariéry medzi vnútorné a vonkajšie priestory, ale táto konštrukcia tieto dve oblasti plynule spája. Cieľom zaujímavého stropu je maximalizovať dostupný priestor a poskytnúť dodatočnú plochu na terase. Do vytvoreného priestoru môže rodina zasadiť ovocie alebo zeleninu – tekvice, hrozno alebo kivi.
Veľká terasa – montovaný dom v meste

Interiér moderného Montovaný dom je veľmi priestranný, dobre osvetlený a útulný. Je to perfektný domov pre energickú rodinu. Interiér je tematicky rozdelený do niekoľkých otvorených obytných priestorov. Obývacia izba je flexibilne zariadená. V prípade potreby môžu veľké obrazovky premietať súkromný priestor. Podobné praktické oddelenie medzi interiérom a vonkajším priestorom bolo dosiahnuté presklenými posuvnými dverami – ponúkajú nádherný výhľad na terasu a v teplom počasí ich môžu bezproblémovo prepojiť. Moderný montovaný dom bol špeciálne navrhnutý tak, aby maximalizoval využiteľnú plochu, a dom môže ponúkať útulné prostredie bez ohľadu na ročné obdobie..
Rýchla, jednoduchá, praktická – stavba montovaného domu

Prekvapujúcim na tejto stavbe je trvanie projektu – montovaný dom bol zostavený len za dva týždne. Drevené panely boli prefabrikované, čo značne uľahčilo priebeh stavby na mieste. Aby bola budova dostatočne stabilná, moderná architektúra bola vyrobená z dreva. Dom bol navrhnutý tak, aby bolo možné maximálne využiť svetlo a slnečnú energiu – v lete je dom vďaka chladiacemu systému príjemne svieži. Boli použité chytré konštrukčné riešenia a bola zabudovaná inovatívna ventilácia.
Od Jaz
Moderný mestský dom s praktickou drevenou konštrukciou

Zaujímavé vetranie fasády

Elegantný krb v obývacej izbe

Montovaný dom – interiér – otvorený obývací priestor

Kožená stolička a obrázky na stenách

Spálňa s kúpeľňou

Malá praktická kúpeľňa

Veľká terasa s posuvnými sklenenými dverami

Plán udržateľného montovaného domu

