Kompletné záhradné vybavenie – drevený altánok, skleník a posedenie

„2611“ je názov tohto projektu na dokončenie Záhradné zariadenie, navrhol Good Design Collective so sídlom v Montane, USA. S týmto dizajnom debutoval mladý tím v roku 2014 na medzinárodnej architektonickej scéne. Nehnuteľnosť, kde bola postavená multifunkčná záhrada, sa nachádza v blízkosti prírodnej rezervácie s rezerváciou pre vlky v meste Bozeman v Montane.
Multifunkčné záhradné zariadenie
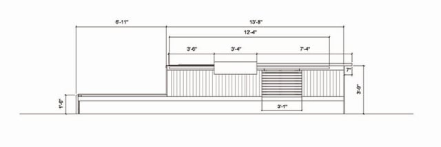
Keďže projekt mal byť realizovaný s obmedzeným rozpočtom, architekti venovali pozornosť technickým aspektom návrhu a výroby. Multifunkčný dizajn pozostáva zo 4 prvkov – skleníka, kvetináčov, záhradnej chatky, otvoreného krbu s posedením a priľahlej multifunkčnej záhradnej lavičky. Sortiment materiálov zahŕňa drevo, betón a oceľ.
Komplexná záhradná technika – projekt “2611”

Obe záhradné stavby sú opláštené drevenými lamelami a vybavené oceľovými prvkami, ktoré sa vyrábajú na mieste. Betónový základ bol tiež naliaty na miesto. Steny skleníka sú opláštené vlnitými priehľadnými plastovými panelmi, ktoré dovnútra prenikajú dostatkom svetla a vytvárajú tak bezpečné prostredie pre pestovanie rôznych rastlín, ako je ovocie a zelenina. Veľké sklopné a otočné okná navyše zaisťujú dostatok svetla a dobrý prívod vzduchu, ako aj nádherný výhľad. Pevné „dvere stodoly“ sú namontované na tyči a dajú sa odsunúť do strany. V zatvorenom stave tieto moderné posuvné dvere vyzerajú ako stena.
Inovácia záhradného dizajnu: multifunkčný drevený pavilón

Na nízkej úrovni pozemku, ktorý obklopuje otvorený krb, bola postavená betónová oporná stena. Vonkajší priestor ponúka integrované vonkajšie sedenie. Multifunkčná záhradná lavička je navrhnutá s prekrývajúcimi sa úrovňami a betónovým základom a ponúka úložný priestor, kde je možné skladovať náradie, záhradné doplnky alebo plodiny..
Drevený zrubový dom s posuvnými dverami a priehľadnou strechou

Záhradná chatka vybavená posuvnými dverami


V skleníku sa ako dekor používa starý klavír

Dizajn schodov


Multifunkčná lavica s integrovaným úložným priestorom

Lavička s prekrývajúcimi sa úrovňami


Úložný priestor na uloženie dreva do krbu

Kreatívny záhradný dizajn s posedením a dreveným altánkom


Stránka v Bozemane v Montane





