Zariadenie Feng Shui – exotické interiérové inšpirácie z Číny

Moderný dom s Zariadenie Feng Shui odráža exotické trendy pre rok 2013 v interiéri. Funkčný, pohodlný a štýlový, interiérový dizajn tohto domu v Číne nás zaujal na prvý pohľad.
Zariadenie Feng Shui – viacgeneračný dom v Číne

Interiér je rozdelený na dve časti, takže je možné ubytovať dve rodiny. Prvý zväzok viacgeneračného domu ubytuje mladý pár s malým dievčatkom. V jadre objemu budovy, typického pre a Zariadenie Feng Shui, je tu jedáleň s veľmi vysokým stropom. Steny tejto „miestnosti“ boli vyrobené z dreveného plotu, ktorý slúži ako clona oddeľujúca jedáleň od zvyšku obývacej časti. Drevo sa používalo hojne a evidentne sa mu dávalo prednosť ako prírodný materiál. Obývacia izba je zariadená luxusným nábytkom od renomovaných značiek. Odrážajú charakter páru – výtvarníkov, ktorí oceňujú nádherný dizajn. Všade vo vnútri sa spája netradičné s tradičným. Typicky pre Feng Shui boli všetky stoly umiestnené v strede miestnosti.
Zariadenie Feng Shui – tri generácie pod jednou strechou

Zariadenie Feng Shui uvádza, že by malo byť dostatok voľného miesta. Aby mohol viacgeneračný dom ponúkať dostatok úložných priestorov pre každého, bola zriadená veľká šatňa, v ktorej má každý člen rodiny svoj osobný priestor. Rodičia napríklad ukazujú vašu keramickú zbierku, dieťa – jeho kresby a starí rodičia – zbierku kaligrafie a ďalšie klasické umelecké diela čínskej kultúry. Zostávajúce miestnosti boli zariadené konzervatívne a zdobené striedmo. Dôraz bol kladený na funkčnosť a pohodlie. Architekti v Neri Hu evidentne uprednostňovali prírodné materiály – od drevených stenových panelov po mramorové dlaždice v kúpeľni až po papierovú lampu, ktorá osvetľuje spálňu.
Moderná jedáleň

Obrazovka na chodbe

Točité schodisko

Moderný interiérový dizajn – dom v Číne

Spálňa Fang Shui

Skriňový systém v suteréne

Šatník vo viacgeneračnom dome

Feng Shui v obývačke

Interiér detskej izby v štýle Feng Shui

Luxusný nábytok

Nábytok podľa pravidiel Feng Shui

Kúpeľňa s mramorovou dlažbou

Moderný viacgeneračný plán domu

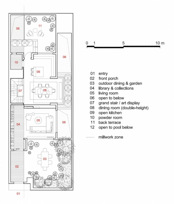
Dom v Číne – pôdorys

Fotografie zo Zhonghai Shen
