Renovácia bytu – Penthouse v Londýne získava moderný vzhľad

Predstavujeme vám úspešný príklad Rekonštrukcia bytu z Veľkej Británie – penthouse v starej budove v centre Londýna sa zmenil na moderný byt s otvoreným priestorom.
Renovácia bytu – využite podmienky terénu

Niekedy majú dokonca žiaduce obytné priestory v centre mesta zlú distribúciu priestoru – taký je príklad tohto londýnskeho bytu, ktorý bol pôvodne rozdelený na niekoľko tmavých a úzkych miestností. Ale majitelia – rodina z juhovýchodnej Ázie sa rozhodli zmeniť to a renomovanú kanceláriu architektov VW + BS poverený úlohou Rekonštrukcia bytu hrať. Talentovaní architekti navrhli niekoľko multifunkčných miestností, ktoré môžu ubytovať majiteľov domov na pracovnej ceste a ich priateľov na dovolenke. Terasa a francúzske okná boli zrekonštruované. Spálňa a skrinka na druhom poschodí boli tiež zariadené. Priestranný obývací priestor v suteréne pozostáva z kuchyne s jedálenským kútom a útulného posedenia. V prípade potreby je možné kuchyňu oddeliť od obývačky oddeľovačom miestností.
Moderná rekonštrukcia bytu kompletne premení strešný byt

Niekoľko rozdeľovačov izieb oddeľuje miestnosť vo viacerých oblastiach – týmto spôsobom si môžu všetci členovia rodiny užívať spoločné chvíle a pritom si užívať svoj súkromný priestor. Nábytok je zámerne jednoduchý – dubové podlahy a obklady stien vytvárajú útulnú atmosféru. Puristické a multifunkčné kusy nábytku v neutrálnych farbách dotvárajú celkový obraz. Je to veľmi úspešný Rekonštrukcia bytu, čo rozumne využíva dostupný priestor.
Pohodlný jedálenský kút pre rodinu a ich hostí

Otvorený obývací priestor

Francúzske okná a terasa sú zrekonštruované

Vstavaná kuchyňa z dreva

Jemné osvetlenie a jasné čiary definujú priestor

Byt bol rozdelený na dve poschodia

Neutrálna farebná schéma v obývacej izbe

Obrazovky a rozdeľovače miestností

Spálňa s písacím stolom

Do priestoru na spanie vedú drevené schody

Prakticky zariadená je aj izba pre hostí

Drevené dvere oddeľujú obývací priestor od súkromného

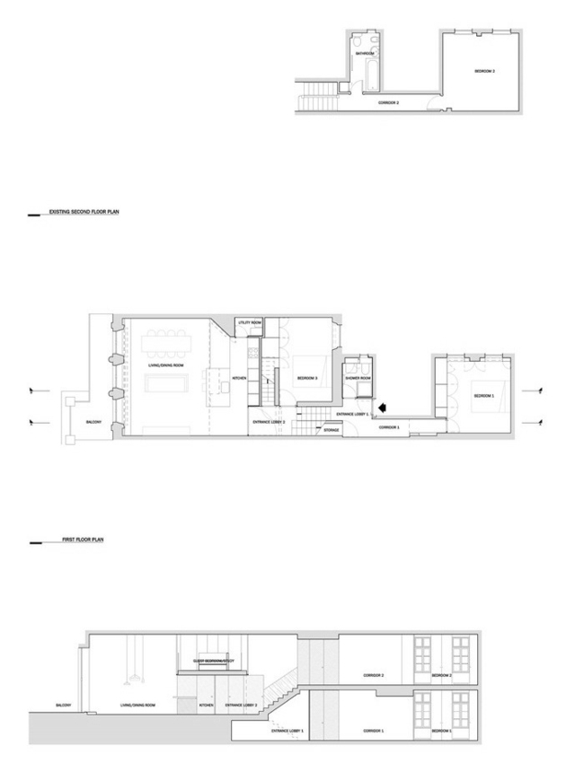
Plán z druhého poschodia

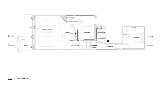
Plán výstavby prvého poschodia a rozvodov miestnosti

