Karaköy Loft od spoločnosti Ofist sa vyznačuje interiérovým dizajnom v industriálnom štýle

Stará prístavná štvrť Istanbul Galata, dnes Karaköy, je okres na európskej strane Mentropole, ktorý sa nachádza na severnom brehu Zlatého rohu – asi 7 km dlhého zálivu Bospor. Obytná štvrť, v ktorej sa nachádza množstvo historických pamiatok, je považovaná za najväčšiu taliansku obchodnú kolóniu mimo oblasti latinskej kultúry. V minulosti tu žili najbohatší janovskí obchodníci a bankári, ktorí obchodovali s Orientom. Karaköy je stále dôležitým obchodným centrom s kancelárskymi budovami, novými galériami, butikmi, reštauráciami a hotelmi, ktoré predstavujú špeciálne architektonické predstavenie.
Uprostred týchto nepokojov, v srdci tohto historického prostredia medzi starým arménskym kostolom Getronagan a vežou Galata postavenou Janovom, sa nachádza podkrovný apartmán Karaköy, ktorý navrhli architekti Ofist pre 45-ročného bakalára. Interiérový dizajn loftu však nemá nič spoločné s typickou orientálnou estetikou. Loftový byt Karaköy je navrhnutý v industriálnom štýle a zaujme svojou modernou otvorenosťou a jednoduchosťou.
Útulnosť v priemyselnom štýle

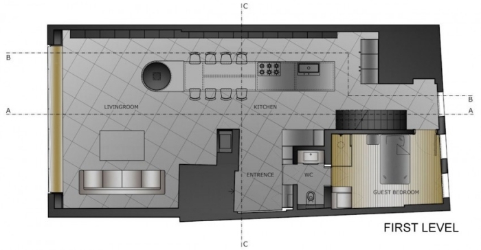
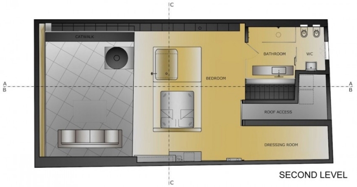
Podkrovie na najvyššom poschodí sa rozprestiera na viac ako 180 m2, rozprestiera sa na dvoch obytných úrovniach a ponúka svetlo zariadené otvorené priestory s bezplatným dizajnom izieb. Bývalé úzke okenné otvory na prednej fasáde boli zväčšené a na ich miesto boli osadené nové okenné rámy pre sklopné okná. Pokiaľ je to teda možné, do celého obytného priestoru by malo byť dopustené viac denného svetla. Už len kvôli nádhernému výhľadu sa oplatilo prerobiť fasádne okná. Na dokončenie otvorenej koncepcie boli obdĺžnikové svetlíky inštalované presne pod sklonom strechy.
Karaköy Loft bol navrhnutý presne podľa predstáv, potrieb a životného štýlu majiteľa. Neutralita, prirodzenosť, pohodlie a pragmatizmus boli kľúčové slová pri výbere materiálov a interiérového dizajnu.
Moderný mezonetový podkrovný byt je zaliaty denným svetlom

Pri navrhovaní a zariaďovaní platilo pravidlo: „Menej je viac“. Celý byt bol považovaný za jednu izbu a rôzne oblasti boli navzájom prepojené. Jedna z dlhých stien bola prerobená na úložný priestor, zatiaľ čo druhá dlhá stena bola obložená tmavosivým prírodným kameňom. Drevený strop Iroko prináša teplo a materiál na báze cementu zaisťuje príjemný pocit naboso. Viac informácií nájdete na webovej stránke Ofist.
Závesný krb v strede dizajnu

Dizajnové závesné svetlá dodávajú moderný nádych

Domová knižnica sa nachádza pod šikmou strechou

Železné prvky v industriálnom štýle

Otvorená kuchyňa a jedálenský kút s úložným priestorom


Rolovateľné skrinky zodpovedajúce industriálnemu štýlu

Steny chodby v sadrovom vzhľade


Sochárske kroky








