Drevený box na spanie ako súčasť individuálneho nábytkového systému v moskovskom jednoizbovom byte

V dnešnom príspevku vám na príklade moskovského bytu s rozlohou 35 metrov štvorcových ukážeme, ako je možné malú obývačku zariadiť multifunkčne a prakticky. V roku 2015 bol dizajnérsky tím Studio Bazi poverený vytvorením pohodlného otvoreného obytného priestoru s dostatkom úložného priestoru a prirodzeného svetla. Za týmto účelom bol navrhnutý individuálny nábytkový systém, ktorý optimálne využíva dostupný priestor. Drevený box na spanie je bezpochyby vrcholom interiéru. Studio Bazi v Moskve je multidisciplinárne dizajnérske štúdio, ktoré sa zameriava na výskum interiéru, produktového dizajnu a dizajnu.

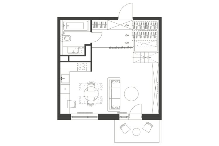
Pri rekonštrukcii malého bytu interiéroví dizajnéri zbúrali priečku medzi kuchyňou a obývacou izbou, aby bol obývací priestor otvorenejší a presvetlenejší. Bujný záves oddeľuje vstupný priestor od zvyšku hlavnej miestnosti. Obývacia a jedálenská časť je obzvlášť praktická a prispôsobivá. Nábytok je možné prestavať v niekoľkých jednoduchých krokoch. Rozkladacia pohovka a rozťahovací jedálenský stôl premenia malú plochu na pohodlný priestor až pre 10 hostí. Podľa požiadaviek klienta bol v apartmáne s rozlohou 35 m² k dispozícii dostatočný úložný priestor. Vedľa vstupných dverí je šatňa a pod spacím boxom sú tri veľké výsuvné skrine.

Aby bol obytný priestor jednoduchý a jasný, bolo rozhodnuté použiť v interiéri povrchy v bielych a drevených tónoch. Steny a stropy sú natreté bielou farbou. Pokiaľ ide o materiál pre podlahovú krytinu, voľba padla na vodoodpudivý laminát.

Drevený box na spanie sa nachádza na druhom poschodí, kam sa dostanete po schodisku. Otvorená jednotka je vybavená vlastným osvetlením a ponúka dobrý výhľad na celý byt. Cez dve okná aj z postele, ktorá bola umiestnená na vyššej úrovni, si môžete vychutnať dobrý výhľad. Vďaka tomu je spací box útulným a pohodlným miestom na odpočinok.

Drevený box na spanie je obložený panelmi z moreného borovicového dreva. Drevo vytvára v interiéri teplé a priateľské prostredie a vizuálne definuje rôzne oblasti. Drevené dosky zvonku boli ošetrené hnedým voskom. Návrh a konštrukcia spacieho boxu bola najťažšou fázou tohto projektu. Jedinečný drevený spací box je úplne samostatnou súčasťou architektúry v rámci jednoizbového bytu.

Jedna osoba sa môže pohodlne postaviť na schody, ktoré vedú do priestoru na spanie. Schodisko vedie do úzkeho výklenku, kde je umiestnená knižnica.

V kuchyni sú na stenách ručne vyrobené iránske dlaždice, ktoré pripomínajú iránsky pôvod obyvateľov. Aby bola malá kúpeľňa pohodlnejšia a opticky ju zväčšila, boli na steny kúpeľne vybrané štruktúrované štvorcové dlaždice. Dlaždice sú ako malé obrázky, na ktoré sa môžete pozrieť pri kúpaní alebo sprchovaní.

Aj keď nie je ľahké nájsť racionálne riešenie pre malé kúpeľne, tomuto moskovskému bytu sa podarilo ubytovať kompletnú vaňu s príslušným príslušenstvom a vodovodným potrubím. V kúpeľni je tiež práčka. Na prvý pohľad to nie je vidieť, pretože je skrytý za jednoduchými prednými časťami umývadla.

Malá obytná jednotka má malý pracovný priestor, ktorý je umiestnený medzi kuchynskou linkou a oknom.
Tento maloformátový byt je skutočným dôkazom toho, že v najmenších priestoroch je možné vytvoriť multifunkčný obytný priestor s vhodným rozdelením funkčných oblastí a individuálnym nábytkovým systémom..
* Zistite viac o Studio Bazi tu
