Dom s nepriamym osvetlením a zaobleným tvarom

Shell House svedčí o obzvlášť zaujímavej architektúre, ktorá sa nachádza uprostred lesa. Zvláštnosťou je zaoblený tvar. Ako materiál sa používa betón. V oblasti sa tomu zatiaľ vyhýbalo, čo viedlo k rýchlejšiemu zvetrávaniu ostatných domov, pretože ide o región s vysokou vlhkosťou. Toto Dom s nepriamym osvetlením na jednej strane predstavuje kontrast k prírodnému prostrediu, ale na druhej strane sa tiež nádherne prispôsobuje prírode.
Dom s nepriamym osvetlením v nábytku

K dispozícii je tiež ekologický a ľahko použiteľný dizajn s podlahovým vykurovaním pre efektívnejšie vykurovanie. Dom s nepriamym osvetlením je vybavený systémom, ktorý je možné ovládať iba tromi tlačidlami. Interiér je pozoruhodný vďaka svojim špeciálnym tvarom. Sú organicky navrhnuté a nenachádzajú sa iba v zaoblených stenách. Oválne tvary boli zvolené aj pri niektorom nábytku, napríklad pri jedálenskom stole, ale aj pri sporáku. Sú v kontraste k abstraktnému nábytku, ako je kuchyňa, príručný stolík a niektoré schody.
Dom s nepriamym osvetlením – moderná kuchyňa

K dispozícii je aj dom s nepriamym osvetlením interiéru. Osvetľovacie systémy boli šikovne integrované pod vstavaný nábytok a zvýrazňujú moderný interiér. Okrúhle strešné okná poskytujú okrem veľkých čelných okien aj dostatočné denné svetlo a spolu s umelým svetlom vytvárajú prístupnú atmosféru. Zaoblené tvary, ako sú známe z prírody, dokonale ladia s teplými drevenými povrchmi. Tento atraktívny materiál sa používa nielen na veľké množstvo nábytku, ale aj na podlahu.
Moderný interiér

Napriek všetkému prirodzenému vzhľadu domu s nepriamym osvetlením sa však nezaobíde bez moderných akcentov. Spomínaná abstraktná kuchyňa v bielom bola okrem iného navrhnutá súčasným spôsobom. K dispozícii je tiež moderné umývadlo, svietiaca nástenná skrinka v kúpeľni a moderná mokrá miestnosť so sprchovacím kútom a vaňou. Nižšie si môžete prezrieť ďalšie podrobnosti o atraktívnom oválnom dome.
Okrúhle svetlíky

Okrúhle steny

Kúpeľňový dizajn

Drevená terasa

Prírodné prostredie

Betónová strešná krytina

Záhradný dizajn s množstvom rastlín

Pôvodná architektúra

Okná na terase

Dom na jeseň

Zaoblená betónová strecha

Dom v japonsku

Efektívne vykurovanie na zimu

Nápad na dizajn od Artechnic

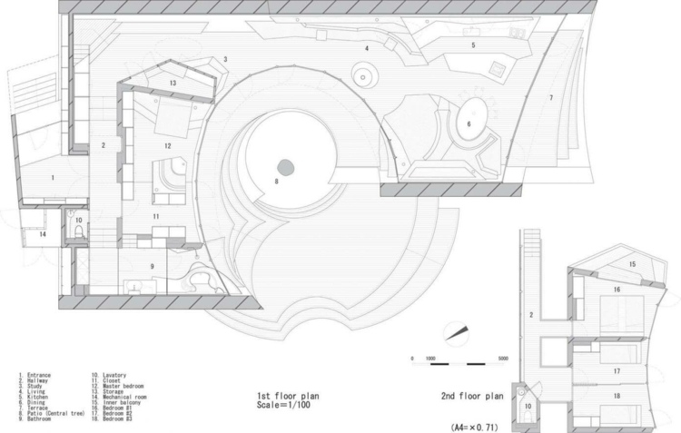
Pôdorys domu

Dom v bočnom pohľade

Dizajn od Artechnic.
