Strešný salónik s bazénom a výhľadom na more vo vile

Projekt Naman dokončilo MIA Design Studio na známej pláži Non Nuoc Beach vo vietnamskom Danangu. Obsahuje 40 viliek zaradených do štyroch typov – A, B, C a D. Dnes vám ukážeme architektúru a interiérový dizajn vily A. Cieľom bolo prepojiť vnútorné priestory s vonkajším prostredím a morom a maximalizovať súkromie pre každú rodinu. the Strešný salónik s bazénom je len jedným z vynikajúcich prvkov, ktoré charakterizujú túto prázdninovú vilu.
Strešný salónik s bazénom a trávnikom

Architekti sa rozhodli pre kreatívny a efektívny dizajn na niekoľkých úrovniach, pretože stavebná plocha bola úzka a s hustými stromami. Tak je chránené súkromie obyvateľov bez toho, aby ste museli obetovať nádherný výhľad a prírodné otvorené priestranstvá a tropické záhrady. Strešný salónik s bazénom a spálne sú preto na hornom poschodí s nerušeným výhľadom na more. Nekonečný bazén na streche prirodzene ochladzuje objem budovy a esteticky zlepšuje strešnú krajinu.
Prístup zo spálne do strešného salónika s bazénom

Každá vila má vlastnú záhradu a množstvo svetlíkov, ktoré nechávajú do priestoru prúdiť prirodzené svetlo. Na zníženie nákladov na dopravu boli pri stavbe domu použité iba miestne materiály. Architektúra víl je jednoduchá, ale elegantná a luxusná. Je chránený pred hurikánmi, ale stále je prirodzene vetraný.
Most na presklené zábradlie vedie na strešnú terasu

krásny západ slnka

efektívne nočné osvetlenie

Zelená strecha s nekonečným bazénom

Strom na dvore

Pohľad na more z jedálenského kúta

obdĺžnikový drevený jedálenský stôl a svetlo modré jedálenské kreslo

šedá pohovka a stoly z tmavého dreva

Bazén s terasou dole

Posteľ v strede spálne

Spálňa a kúpeľňa

Drevo a kameň v kúpeľni

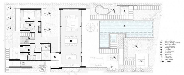
Architektúra a pôdorysy
prvé poschodie

druhá úroveň

Objem budovy a vodné plochy





Viac sa dozviete na oficiálnom webe architektov MIA Design Studio
