Nábytok vo vidieckom štýle navodzuje pocit útulnosti

Architekti z UZU navrhol a nedávno dokončil tento rodinný dom. Dom sa nachádza v japonskom Kjóte a fascinuje ho Zariadenie vo vidieckom štýle, ktorá prináša útulnosť a teplo. Budova sa nachádza na malom zelenom predmestí. Krásne prostredie / les a dve hory / inšpirovalo architektov k ich projektu. Klienti špecifikovali otvorenú architektúru, ktorá zároveň perfektne zapadá do vidieckej krajiny. Preto bolo rozhodnuté proti modernej minimalistickej mestskej vile a útulnej lesnej chate.
Zariadenie v štýle vidieckeho domu – moderné a pohodlné

Dvojpodlažná budova so sedlovou strechou a čitateľnými drevenými trámami v interiéri ponúka dokonalé zázemie pre a Zariadenie vo vidieckom štýle. Podľa toho boli steny natreté na bielo.
Malá obytná časť sa nachádza na prízemí – terén je v Japonsku dosť obmedzený, architekti by preto mali ušetriť čo najviac obytného priestoru. Z tohto dôvodu bolo rozhodnuté navrhnúť jedálenskú kuchyňu, ktorá je plynulo prepojená s priľahlou terasou posuvnými sklenenými dverami. Kuchyňa je kompletne z dreva podľa rozmerov zákazníka a na mieru je vyrobený aj masívny rustikálny jedálenský stôl. Na betónovú podlahu bolo položených niekoľko dosiek z naplaveného dreva – tieto vytvárajú útulnú atmosféru. Vysoký strop a dodatočne integrované strešné okno prepúšťajú do obývačky dostatok slnečného svetla.
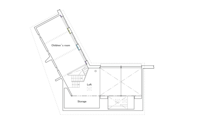
Obývacia časť je na prízemí a potom prechádza do priestoru na spanie rodičov. To je chránené pred zvedavými pohľadmi betónovými stenami. Priestranná detská izba sa nachádza na druhom poschodí. Drevené schodisko vedie do chlapčenskej izby a útulného posedenia s televíziou. Aj tu možno nábytok označiť za moderný a zároveň pohodlný a útulný.
Vybavenie vo vidieckom štýle – priestranná obývacia izba s výhľadom na hory


Obývacia časť je útulná a praktická

Veľká terasa je plynule prepojená s obývacou časťou posuvnými sklenenými dverami

Betónový dom – zaujímavý dizajn chodby

Drevený dom uprostred prírody – nádvorie

Mestská vila v tvare V sa otvára do nádhernej krajiny a do hôr






