Moderný rodinný dom sa hrá s transparentnosťou a zrkadlovými efektmi

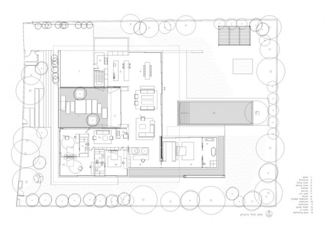
„Float House“ je a moderný rodinný dom v izraelskom Tel Avive a bola založená v roku 2013 Architekt Pitsou Kedem navrhnuté. Architektonická koncepcia bola postaviť priestranný dom na pozemku s rozlohou 550 metrov štvorcových, ktorý je vnútornými dvormi a pohyblivými rozdeľovačmi oddelený na menšie miestnosti s rôznymi funkciami..
Moderný rodinný dom má rozlohu 550 metrov štvorcových

Jednotlivé miestnosti a nádvoria sú ako celok prepojené dvoma ultratenkými strechami podopretými centrálnym bodom, takže sa zdá, že plávajú vo vzduchu. Dve strechy sa spájajú a zasahujú 5 metrov nad predné steny domu. Celá strecha je vyrobená z ľahkých materiálov s miernym sklonom.
Moderný rodinný dom s vnútorným dvorom

Samotný dom pozostáva z radu miestností, kde sa spájajú hranice medzi vnútorným a vonkajším. Vstup je orámovaný stenou z drevených lamiel, ktorú je možné vnímať ako hranicu medzi týmito dvoma oblasťami. Fasáda chráni obyvateľov pred zvedavými pohľadmi z ulice, zatiaľ čo dom na druhej strane sa úplne otvára do vnútorného dvora.

Ak prejdete vstupnou halou, prejdete cez priehľadný bazén s veľkými čadičovými skalami a stromami, ktoré akoby plávali na vode. Ak sa bližšie pozriete na obrázky, zažijete ilúziu, že dom pláva a odráža sa v bazéne, rovnako ako sa strecha vznáša nad sklenenými stenami. Dlhý, úzky bazén sleduje líniu stien a vytvára úchvatné efekty vodného zrkadla, ktoré v noci zdôrazňujú svetlá.
























