Moderný dovolenkový dom s výhľadom na Stredozemné more

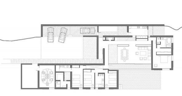
A moderný prázdninový dom sa nachádza v španielskej Almerii na strmom teréne a ponúka výhľad na Stredozemné more. Keď ste v dome, máte pocit, že horizont je súčasťou domu. Architekti z Architekti MVN starostlivo sledovali požiadavky zákazníkov. V dome sa nachádza garáž a kuchyňa, obývačka s jedálňou a kanceláriou, knižnica, miestnosti pre deti a hostí a malá sauna, dielňa na sochárstvo a maľovanie.
Moderný prázdninový dom s nádherným výhľadom

the moderný byt bol postavený v oblasti so strmým svahom a má nádherný výhľad na východ, smerom k Stredozemnému moru. Poloha domu využíva malú prírodnú platformu, ktorá minimalizuje pohyb Zeme a je dokonale prispôsobená poľu. A moderný prázdninový dom ako je tento, je príkladom zachovanej tradície v architektúre, pričom terasy medzi poschodiami sú určené pre sady.
Moderný prázdninový dom so stredomorským interiérom

Dom AA od MVN Architekten je organizovaný v troch častiach. Prvé poschodie je určené pre servisné miestnosti – parkovisko, špajzu a kuchyňu s malou terasou. Centrálne poschodie prijíma najdôležitejšie prvky domu. Dôležitým detailom je terasa, z ktorej môžete sledovať krásne západy slnka a kde začína dialóg s okolím. Veľký dôraz bol kladený na vzťah svetla a horizontu. Obývacia časť má moderný dekor v čistých bielych tónoch a je založená na silnom spojení s morom.
Moderný interiér vo svetlých farbách

Svetlo a biela v hre

Hranica medzi vnútrom a zvonkom 
Patio s drevenou podlahou
Pohodlný ratanový nábytok na terase

západ slnka

Nočné osvetlenie a biely exteriér

Pohľad zo strechy 
Moderný rekreačný dom s bielou fasádou

