Moderný dom s plochou strechou vo Villete – otvorený a súkromný zároveň

Casa 7A je a moderný dom s plochou strechou vo Vilette v Kolumbii a je z Arquitectura en Estudio a navrhla Natalia Heredia. Dom sa nachádza na vrchole kopcov asi hodinu alebo dve jazdy od Bogoty a môže sa pochváliť vysokou úrovňou udržateľnosti a veľkým luxusom. Casa 7A predvádza modernú drevenú fasádu z posuvných a skladacích dverí, ktorá obyvateľom ponúka v prípade potreby otvorenosť a súkromie.
Moderný dom s plochou strechou z betónu a dreva

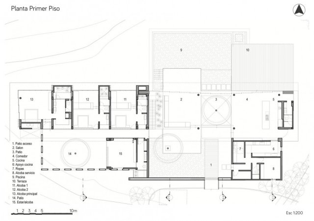
Moderný dom s plochou strechou bol zrealizovaný na začiatku tohto roka a má rozlohu 550 m². Vila bola postavená za pomoci miestnych pracovníkov a s použitím materiálov ako betón, pieskovec, drevo na skladacie dvere a nábytok a podlahy z udržateľne pestovaného teaku. Priaznivá poloha a orientácia zo severu na juh pomáha znižovať prenos energie, zatiaľ čo cez bazén počas dňa svieti slnko. Na ohrev vody v bazéne je k dispozícii solárny systém rekuperácie tepla. Dom má aj systém zberu dažďovej vody na zavlažovanie.
Moderný dom s plochou strechou, kde dochádza k spájaniu zvnútra a zvonku

Dom je rozdelený na dve časti – otvorené vonkajšie priestory a súkromné vnútorné priestory. Súkromné priestory zahŕňajú štyri spálne (každá s vlastnou kúpeľňou) a kuchyňu s jedálenským kútom. Obytný priestor, ktorý je čiastočne vonku, je veľmi zaujímavý. Pod holým nebom rastie malý strom. Keď sa dom nepoužíva alebo ak chcete viac súkromia, drevené dvere a okná je možné sklopiť. Koncept nie je nijako jedinečný, ale drevená fasáda je pekný nápad, ktorý bol obzvlášť šikovne navrhnutý. Zaisťuje súkromie obyvateľov a pomáha znižovať náklady na energiu v prevažne horúcom a suchom podnebí.
dekoratívna záhradná stena vyrobená z betónu

Bočný pohľad

keď je dom zatvorený

a keď je otvorený

Drevené dvere sú trochu priehľadné

Slnečná terasa pri bazéne

krásny výhľad na okolie






















