Moderné nápady na bývanie pre luxusné pohodlie v prírodnom prostredí

Títo moderné sídlo dostane názov 2LB house. Nachádza sa v Ženeve vo Švajčiarsku a prevádzkuje ho Raphaël Nussbaumer Architectes navrhnuté. Dom snov, ktorý ponúka pohodlie a luxus zároveň. Ideálne miesto pre každú rodinu!
Moderné sídlo v Ženeve púta pozornosť

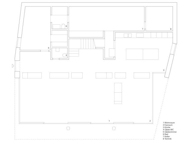
the moderné sídlo je v oblasti, zároveň je veľmi blízko centra mesta. Dom snov patrí rodine s dvoma deťmi. Zákazníci sa cítili silne priťahovaní k architektonickému štýlu v Brazílii, ktorý zohral rozhodujúcu úlohu v exteriéri a interiéri budovy. Skosená strana domu ponúka úchvatný výhľad na hory Salève. Prírodné prostredie má pozitívny vplyv na všetkých členov rodiny a dodáva im nádherný pocit pokoja a súkromia. Architektúra je premyslená tým, že zahŕňa niektoré kľúčové komponenty. Steny na jednej strane zaisťujú bezpečnú atmosféru vo vnútri, na druhej strane sa mieša hranica medzi vnútorným a vonkajším priestorom. Sklenené okná umožňujú bezprostredné prepojenie domu s prírodou. Obývacia časť je týmto spôsobom opticky rozšírená. Preto je záhrada považovaná za ústredný prvok projektu.
Moderné sídlo – ideálne miesto na dovolenku pre celú rodinu

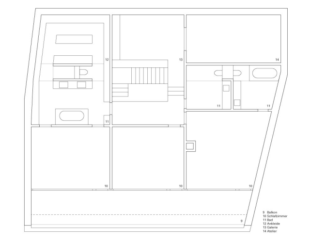
Obývacia časť a záhrada sa stávajú srdcom domu. Zároveň bolo dôležité zabezpečiť súkromie vzhľadom na okolité domy. the moderné sídlo a ich obytný priestor sa rozprestiera na dvoch poschodiach. Druhá úroveň je dobre chránená pred zvedavými očami. K dispozícii je spálňa, rodinná izba, kúpeľňa, šatňa a štúdio. Pôvodným dizajnovým prvkom sú svetlíky. Budova sa vyznačuje svojou masívnou štruktúrou. Ako materiál sa používa betón. Interiérový dizajn zaujme moderným a štýlovým vybavením. Každý detail je ovplyvnený aktuálnymi trendmi interiérového dizajnu. Svieže farebné kombinácie, krásne akcenty a elegantný dizajnový nábytok dotvárajú fascinujúci celkový obraz rodinného sídla.









